1011 Clearbrook Road
Matthews, NC 28105
$586,000 Coming soon
Subdivision: Matthews Estates

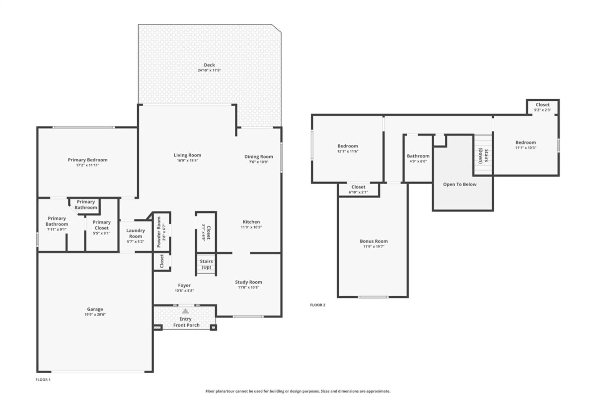
Welcome to Matthews Estates, and a home that delivers the best of both worlds. Tucked toward the back of the community with the greenway as your backdrop, step outside and connect with nature in seconds. Inside, this 3-bedroom, 2-bath home with a large bonus room has been completely re-envisioned with mid-century modern flair. A designer honeycomb orb chandelier sets the tone, casting light across the space as a true focal point. The two-story great room with vaulted ceilings, extensive millwork, and strong Craftsman details creates an immediate impact, while new windows and oversized sliding stacked glass doors flood the home with natural light and open seamlessly to your expanded deck, which is made for gatherings. The main level features hardwood floors throughout and a primary suite overlooking your tree-canopy backdrop. The kitchen brings the personality and is ready to get cookin' --Navy blue custom cabinetry with organization/soft-close drawers, vertical subway tile, stainless steel appliances, and a workstation sink with attachments!! The former dining room has been completely repurposed into your own library/den flex space. Upstairs, you’ll find two colorful bedrooms, a full bath, and a bonus room with the space to add a closet for a fourth bedroom if needed. The lifestyle here is what buyers dream of. Just a couple of houses down, access the greenway and walk or bike to the places most people drive to, Historic Downtown Matthews, local events, Matthews Elementary, Squirrel Lake Park, and more! No carpool line, no parking stress, just real convenience. The real envy will be that you will be 2 minutes from 485 AND the new Trader Joe's, which will be located at John St. and 485. Book your showings now and get your preapproval letter ready! Pictures really do not do this home justice! ACTIVE THURSDAY and showings start Friday, April 25th! Cinch Home Warranty Included.

Request More Info:

Basic Information
MLS#: 4370020
Price: $586,000
Square Footage: 2,096
Bedrooms: 3
Bathrooms: 2 Full, 1 Half
Acreage: 0.3
Year Built: 1997
Elementary School: Matthews
Middle School: Crestdale
High School: Butler
Details
Waterfront/water view: No
Parking: Driveway,Attached Garage,Garage Faces Front
HVAC: Forced Air,Heat Pump,Natural Gas,Zoned
HOA: $142 / Annually
Main level:   Bathroom-Full
Upper level:   Bed/Bonus
Virtual Tour: Click here
Listing Courtesy Of: Danielle Edwards, RE/MAX Executive - info@soldondanielle.com

Terms of use/DMCA