10200 Atchinson Drive
Mint Hill, NC 28227
$399,500 Under Contract - Show
Subdivision: Lawyers Station

Welcome to 10200 Atchinson Drive- a charming ranch-style home in the heart of Mint Hill that perfectly blends comfort, style, and modern updates. Step inside to discover a beautifully refreshed interior featuring new flooring, a remodeled kitchen and bathrooms, and a cozy fireplace that anchors the living space with warmth and charm. The updated kitchen shines with stainless steel appliances, tile backsplash, and sleek finishes, while the remodeled bathrooms include stylish touches like a fully tiled primary shower with a glass enclosure. This thoughtfully updated home is truly move-in ready, offering peace of mind with a new roof in 2025, furnace in 2020, AC in 2024. Enjoy your morning coffee or evening gatherings in the large, flat backyard, complete with a storage shed for extra space-or unwind on the private back patio. The attached one-car garage and dedicated laundry area add everyday convenience. Located just minutes from Mint Hill’s shops, dining, and parks, this home offers the perfect combination of small-town charm and easy access to Charlotte.

Request More Info:

Basic Information
MLS#: 4316126
Price: $399,500
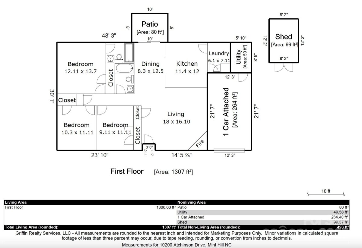
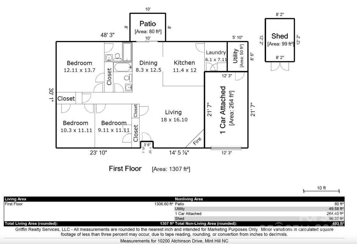
Square Footage: 1,307
Bedrooms: 3
Bathrooms: 2 Full
Acreage: 0.31
Year Built: 1986
Elementary School: Lebanon
Middle School: Northeast
High School: Independence
Details
Waterfront/water view: No
Parking: Driveway,Attached Garage,Garage Faces Front
HVAC: Central
Main level:   Bathroom-Full
Listing Courtesy Of: Real Broker, LLC - soldbyjenniferhoyle@gmail.com

Terms of use/DMCA