109 S Main Street
Granite Falls, NC 28630
$389,900 Active

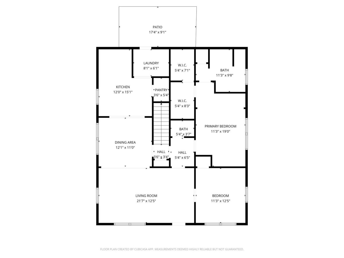
HEART OF GRANITE FALLS-Don't let the year built fool you. This spacious 1940's home has been totally renovated. A true show stopper featuring up to 5 full bedrooms, 2 1/2 baths! The main living area is open to the dining & kitchen, making a perfect gathering place for family/friends. The kitchen boasts gorgeous granite countertops, subway tiles, custom cabinetry, stainless steel appliances, including a side by side refrigerator...and a pantry for stocking up. The owner's suite is conveniently located on the main level & features an all new stunning en suite bathroom with enormous walk-in shower, granite countertops, fixtures & more. In addition, another bedroom is also located on the main level. This room could be used as a flex space, such as an office, nursery, etc. Also, located on the main level is a 1/2 bath for guests, & a laundry room. Upstairs, there are 3 ample bedrooms, all with walk-in closets & a full bathroom to share. Gorgeous hardwood floors flow throughout the entire home, except for the beautiful tile floors in the bathrooms. Everything except the brick exterior, foundation & framing are new. A list of new renovation items include a new architectural roof, 2 HVAC systems for main & upper level, plus new ductwork, electrical (no old wiring), new plumbing (no old plumbing), includes new plumbing all the way to the street connecting to city sewer; window replacements, interior & exterior doors, sheetrock; new hardwood flooring throughout main level--upstairs are original but refinished; all light fixtures, & plumbing fixtures. All items have been permitted & approved by Caldwell County Inspectors. In addition, the driveway & patio are also new. This is a true turnkey home and ready for its new owners. Conveniently located near schools, restaurants & easy access to HWY 321 for traveling to Hickory, Charlotte airport, or northward to the moutains!

Request More Info:

Basic Information
MLS#: 4341222
Price: $389,900
Square Footage: 2,080
Bedrooms: 5
Bathrooms: 2 Full, 1 Half
Acreage: 0.51
Year Built: 1941
Elementary School: Granite Falls
Middle School: Granite Falls
High School: South Caldwell
Details
Waterfront/water view: No
Parking: Driveway
HVAC: Central,Heat Pump
Main level:   Bedroom(s)
Upper level:   Bathroom-Full
Listing Courtesy Of: Walker Real Estate Services LLC - rhonda.realtor.lenoir@gmail.com

Terms of use/DMCA