1115 West Boulevard
Charlotte, NC 28208
$1,250,000 Active

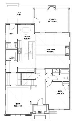
This custom-built 3,000 sq. ft. home features a carefully crafted floor plan, showcasing premium finishes and exceptional functionality. It is designed to be constructed on a prime lot located less than 3 miles from uptown, providing a picturesque view of the Charlotte skyline and is under 5 miles from Charlotte Douglas International Airport. This spacious lot offers unparalleled convenience and potential. Additionally, the detached garage on the second floor can be transformed into a bonus room or apartment, pending the necessary permits and assigned costs.

Request More Info:

Basic Information
MLS#: 4253297
Price: $1,250,000
Square Footage: 3,160
Bedrooms: 4
Bathrooms: 3 Full
Acreage: 0.41
Year Built: 2025
Elementary School: Unspecified
Middle School: Unspecified
High School: Unspecified
Details
Waterfront/water view: No
Parking: Detached Garage
HVAC: Central
Main level:   Kitchen
Upper level:   Laundry
Listing Courtesy Of: IT Realty, LLC - tanya@itrealtywow.com

Terms of use/DMCA