111 Pinnacle Crossing
Shelby, NC 28152
$331,990 Active
Open House! Sat, Mar 14, 2:00PM - 5:00PM

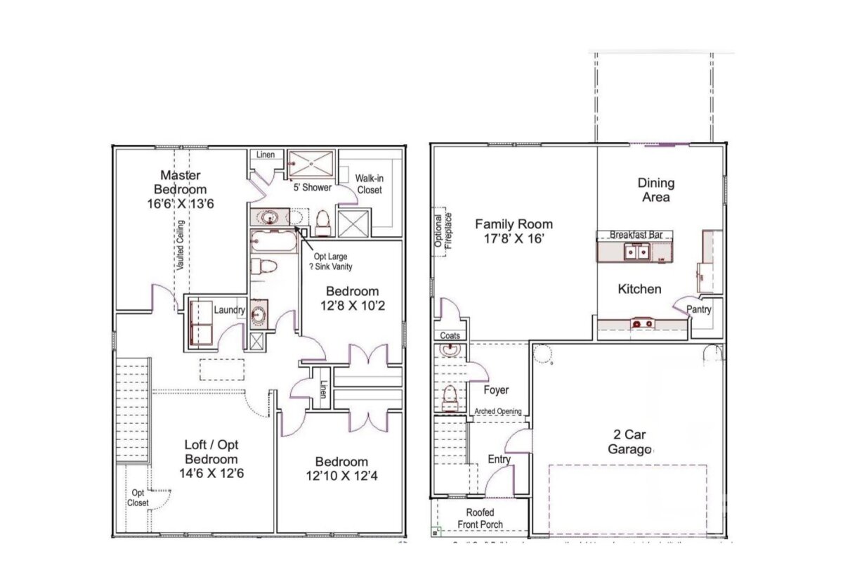
USDA area - NO MONEY DOWN! This is our Wynwood IB plan. This home is a 3 bedroom with large secondary size room and large loft. This floor plan also offers the option for a 3 bedroom and large loft space. In addition, builder is offering up to $10,000 for buyer to use towards closing cost if a preferred lender is used. There are also additional incentives for a limited time! Just a short drive from Charlotte or the NC mountains. Our vibrant community offers LOW HOA DUES, a basketball court, and pond access for kayaking and fishing. Your new home comes loaded with upgrades: 9" ceilings, LVP flooring, luxury tile, 36" staggered cabinets, and a modern kitchen with granite countertops, stainless steel appliances, and a linear tile backsplash. All bedrooms are great sizes! Upstairs, find generously sized bedrooms and a convenient laundry room. Come see your future today! SouthCraft Builders by Empire Homes offers quality craftsmanship, well-appointed designer elements and all of the features buyers expect in a custom-built residence at an affordable price.

Request More Info:

Basic Information
MLS#: 4353221
Price: $331,990
Square Footage: 1,971
Bedrooms: 3
Bathrooms: 2 Full, 1 Half
Acreage: 0.11
Year Built: 2026
Elementary School: Marion
Middle School: Shelby
High School: Shelby
Details
Waterfront/water view: No
Parking: Driveway,Attached Garage,Garage Door Opener,Garage Faces Front
HVAC: Electric,Heat Pump
HOA: $450 / Annually
Main level:   Breakfast
Upper level:   Primary Bedroom
Listing Courtesy Of: EXP Realty LLC Mooresville - Jenna@ReflectionsRE.com

Terms of use/DMCA