1143 Grandview Peaks Drive
Nebo, NC 28761
$619,900 Active
Subdivision: Grandview Peaks

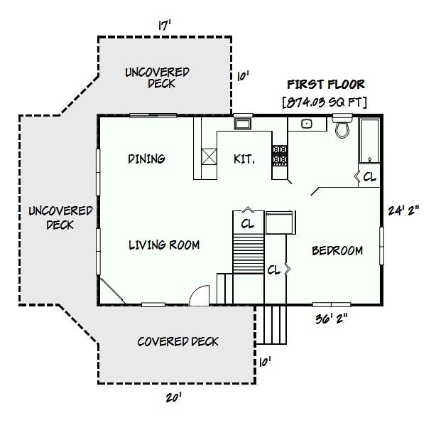
Rustic Log Home on 2.4 acres offering long-range mountain views and all the natural serenity that the Blue Ridge Mountains are famous for. Offered Partially Furnished! Located in the popular gated community of Grandview Peaks, this home offers 3 levels of living space with 2 bedrooms and 3 full baths including one in the finished basement - the perfect setting for a second family room, home gym, or man cave/game room. The land has a gentle slope, providing ample space for outdoor living, gardening, or simply relaxing in nature. The covered gable front porch and open decks on two sides offer lots of space for grilling, lounging, or entertaining friends. Inside, the family room has high ceilings, centered around a gas log fireplace. There's both a dining area and a breakfast bar off the kitchen island to accommodate many visitors. The kitchen is open with wood cabinets & stainless steel appliances. Bathrooms are spacious with tile showers & lots of storage. The primary bedroom is upstairs with an en-suite bathroom, walk-in closet, and a loft overlooking the family room - the perfect spot for a home office or hobby space. The finished basement offers a huge open den, the perfect spot for a movie night or to watch the big game. It would also make a fantastic game room or extra sleeping space for guests. The laundry room is located in a large utility room with lots of storage space. This home has been partially used as a short-term rental with a great rental history. The community offers miles of hiking trails and a small stocked lake for swimming, fishing, or kayaking. Next to the lake is a white sand beach, a floating dock, 2 stationary docks and a large heavy timber pavilion for picnicking and neighborhood gatherings. Come see all this wonderful mountain home and community has to offer!

Request More Info:

Basic Information
MLS#: 4329247
Price: $619,900
Square Footage: 2,045
Bedrooms: 2
Bathrooms: 3 Full
Acreage: 2.4
Year Built: 2011
Elementary School: Glenwood
Middle School: East McDowell
High School: McDowell
Details
Waterfront/water view: No
Parking: Driveway
HVAC: Heat Pump
HOA: $1411 / Annually
Main level:   Family Room
Upper level:   Primary Bedroom
Listing Courtesy Of: Engel & Volkers Foothills Lake James - Cory.coady@evrealestate.com

Terms of use/DMCA