114 N Harris Street
China Grove, NC 28023
$270,000 Active

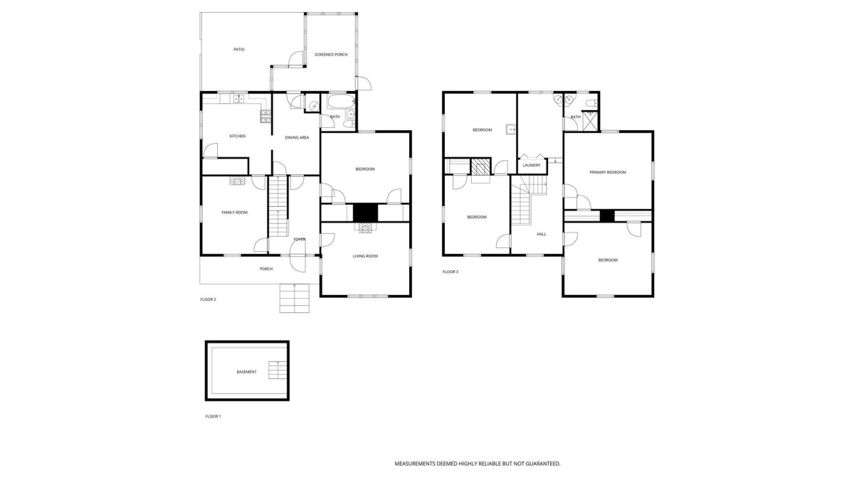
Charming circa-1900 (1881 per Historical Books) home on a spacious 0.55-acre lot in the heart of China Grove. Located on established N Harris Street, this property offers classic character, tall ceilings, and historic appeal with room to update or personalize. New roof replaced in 2024, Upstairs heat pump replaced 2023, central air upstairs 2023, Gaspack downstairs 2010, 3 free standing gas units downstairs approx 10 years old. Large yard with mature trees provides plenty of outdoor space for gardening, pets, or future improvements. Conveniently located near downtown China Grove, parks, shops, and I-85 for easy access to Salisbury, Kannapolis, and Charlotte. A great opportunity for buyers seeking a home with history, potential, and small-town charm.

Request More Info:

Basic Information
MLS#: 4322100
Price: $270,000
Square Footage: 2,643
Bedrooms: 5
Bathrooms: 2 Full
Acreage: 0.55
Year Built: 1900
Elementary School: Unspecified
Middle School: Unspecified
High School: Unspecified
Details
Waterfront/water view: No
Parking: Driveway
HVAC: Heat Pump,Natural Gas
Main level:   Kitchen
Upper level:   Bedroom(s)
Listing Courtesy Of: Lantern Realty & Development LLC - melissayates4u@gmail.com

Terms of use/DMCA