115 Kentberry Court
Gastonia, NC 28056
$445,000 Under Contract - Show
Subdivision: Copperfield

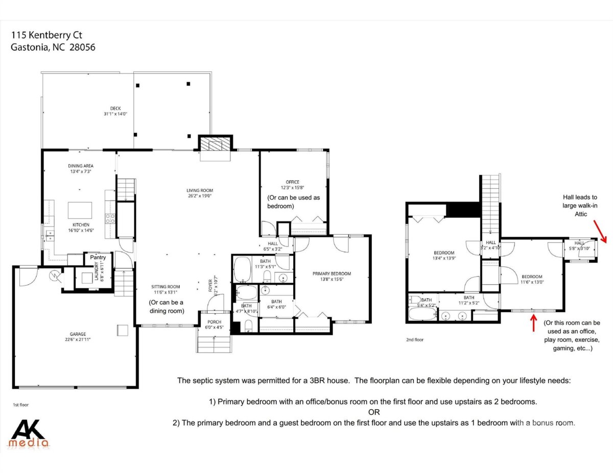
Discover the charm and character of this beautifully crafted 1.5 story custom home, perfectly situated in a cul-de-sac on 0.70 acre with a sparkling saltwater pool. The oasis style backyard feels like your own private resort with a park-like front yard for picnics and play time. Step inside to find a warm and inviting home featuring vaulted ceilings, a stone surround gas fireplace, and hardwood floors throughout the entire home. Freshly painted in soft, neutral tones, the home offers a bright, move in ready feel. The primary suite is on the main floor with a private deck for a peaceful spot for morning coffee or evening relaxation. The spacious kitchen features granite countertops, abundant cabinetry with pull out shelving, and easy flow to both dining and living spaces. With 3 bedrooms, 3 full bathrooms, and an additional office or bonus room, the layout offers flexibility for work, guests, or hobbies. Upstairs, two bedrooms share a Jack and Jill bathroom, creating a perfect setup for family or visitors. Upstairs also offer a huge walk-in attic for all your storage needs. This home blends comfort, elegance, and everyday livability. Step outside and unwind in your own backyard retreat — the saltwater pool comes with a safe pool cover that you can stand on and not sink – safe for people and pets! Overlooking the pool is a huge deck with a pergola, and plenty of space for lounging, dining, and socializing. Connect your grill to the gas line and never worry about running out of gas while grilling out and entertaining. At night, roast marshmallows over the fire pit and gaze up to the night sky and see the stars. A special home like this won’t stay on the market long. Come see it today and fall in love.

Request More Info:

Basic Information
MLS#: 4368411
Price: $445,000
Square Footage: 2,433
Bedrooms: 3
Bathrooms: 3 Full
Acreage: 0.7
Year Built: 1989
Elementary School: W.A. Bess
Middle School: Cramerton
High School: Forestview
Details
Waterfront/water view: No
Parking: Driveway,Attached Garage
HVAC: Floor Furnace,Natural Gas
Exterior Features: Fire Pit
HOA: $150 / Annually
Main level:   Bathroom-Full
Upper level:   Bathroom-Full
Listing Courtesy Of: PRO REALTY SERVICES - michelle.daniels@hotmail.com

Terms of use/DMCA