1170 Kildare Drive Unit 77
Salisbury, NC 28146
$412,900 Under Contract - Show
Subdivision: Kerns Ridge

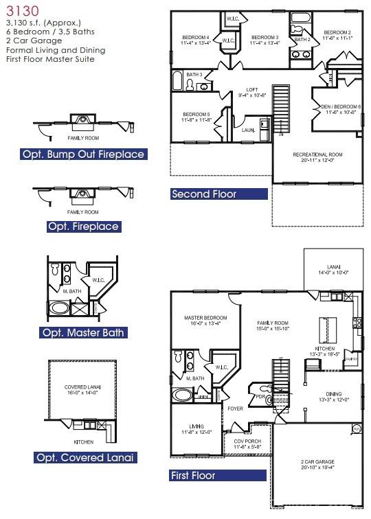
The 3130 floor plan by Adams Homes offers exceptional space and versatility designed for today’s lifestyle. Soaring ceilings highlight the expansive great room and open floorplan, seamlessly connecting the kitchen and living areas and flowing out to an oversized covered patio, perfect for indoor-outdoor entertaining. The kitchen is both functional and stylish, featuring a center island with breakfast bar, granite countertops and stylish tile backsplash. The primary suite, conveniently located on the main level, provides a private retreat with an ensuite bath that includes dual vanities, tiled shower, and a generous walk-in closet. Upstairs, you’ll find additional bedrooms, a jack-and-jill bathroom and several impressive flexible living spaces. This model is a great option with plenty of room for everyone to live, work and unwind!

Request More Info:

Basic Information
MLS#: 4327963
Price: $412,900
Square Footage: 3,130
Bedrooms: 6
Bathrooms: 3 Full, 1 Half
Acreage: 0.22
Year Built: 2025
Elementary School: Unspecified
Middle School: Unspecified
High School: Unspecified
Details
Waterfront/water view: No
Parking: Attached Garage,Garage Faces Front
HVAC: Electric
HOA: $900 / Annually
Main level:   Primary Bedroom
Upper level:   Laundry
Listing Courtesy Of: Adams Homes Realty-NC, Inc. - karen.christensen@adamshomes.com

Terms of use/DMCA