1231 Bansal Drive Unit 185
Charlotte, NC 28215
$447,290 Active
Subdivision: Clairmont

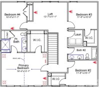
This two-story home includes 4 bedrooms and 2.5 bathrooms on a great homesite. The main floor has a bonus room that can be used as the 5th bedroom, office, play space, den, or anything else you can imagine. The Kitchen is spacious with a long island with seating for up to 6 chairs. Upon entering the home, you will notice a large open floorplan and a gas-fireplace makes the area feel warm and welcoming. Upstairs, the primary bedroom features a tall vaulted ceiling and leads to a primary bathroom with a deep linen closet, separate access to a large walk-in closet. The laundry room is conveniently located just outside the primary bedroom, close to the three spare bedrooms, their full bathroom, and large open loft recreation area. Bedrooms 2 & 3 upstairs also feature large walk-in closets! Chosen custom selections include: Exterior: McDowell elevation A, Alside Conquest Monterey Sand Siding and Tuscan Clay board and batten accent, with Black windows and gutters with Lakeshore clean brick boarder. A designer brown painted garage door with windows and hardware & brown gutters will complete this designer earthy look. Structural: Bonus Room on Main, Gas Fireplace, 10x12 open Rear Porch, Primary Bath walk-in tile shower, Vaulted ceiling over primary bedroom. Design: 2-tone kitchen Cabinets with White perimeter and quill (light brown) island, white with light brown marbling Quartz Countertops, Soft Beige LVP Flooring everywhere except carpet in bedrooms 2 & 3, Hardwood Stairs. Technology: Video Doorbell & Hub, Full Home Networking with centralized tech box, programmable thermostats. Appliances: SS Gas Range, microwave, dishwasher. Energy Efficiency: Every home independently tested and receives HERS certification. Similar Homes available for a preview tour in person at another Mungo Homes community while this home is under construction and virtual tours of the McDowell plan by Mungo Homes are available on YouTube.

Request More Info:

Basic Information
MLS#: 4363373
Price: $447,290
Square Footage: 2,217
Bedrooms: 5
Bathrooms: 2 Full, 1 Half
Acreage: 0.18
Year Built: 2026
Elementary School: Elizabeth Traditional
Middle School: Bradford Preparatory
High School: Bradford Preparatory
Details
Waterfront/water view: No
Parking: Driveway,Attached Garage,Garage Door Opener
HVAC: Forced Air,Natural Gas
HOA: $225 / Quarterly
Main level:   Kitchen
Upper level:   Laundry
Listing Courtesy Of: Mungo Homes - kglover@mungo.com

Terms of use/DMCA