125 Crestview Lane Unit 14
Troutman, NC 28166
$1,071,100 Active
Subdivision: Saddlehorn

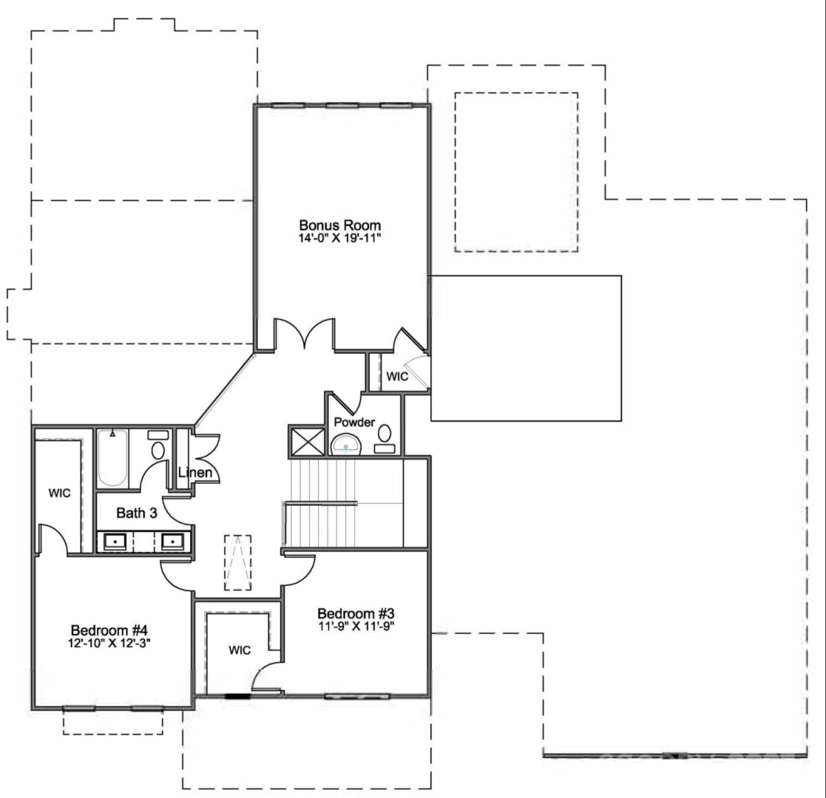
The Paxton is a spacious two-story home with thoughtful design and comfort in mind. The main level includes the primary suite, a flex room, and a secondary bedroom—perfect for versatile living. The primary suite features dual vanities, a large soaking tub, and a walk-in shower for a true retreat. Upstairs, you’ll find a roomy bonus space, two additional bedrooms, and a convenient powder bath. Enjoy a fireplace in the open family room and on the screened in porch! By Appointment Only. During model home hours: 10-6 Mon-Sat, 1-6 Sundays. New Construction, home is nearing completion but not complete.

Request More Info:

Basic Information
MLS#: 4281585
Price: $1,071,100
Square Footage: 3,426
Bedrooms: 4
Bathrooms: 3 Full, 2 Half
Acreage: 0.69
Year Built: 2025
Elementary School: Troutman
Middle School: Troutman
High School: South Iredell
Details
Waterfront/water view: No
Parking: Attached Garage
HVAC: Forced Air
Main level:   Bathroom-Half
Upper level:   Bonus Room
Listing Courtesy Of: Niblock Development Corp - clittle@niblockhomes.com

Terms of use/DMCA