1402 Brantley Road
Kannapolis, NC 28083
$299,000 Active
Subdivision: Hill Crest
Open House! Sun, May 03, 1:00PM - 3:00PM

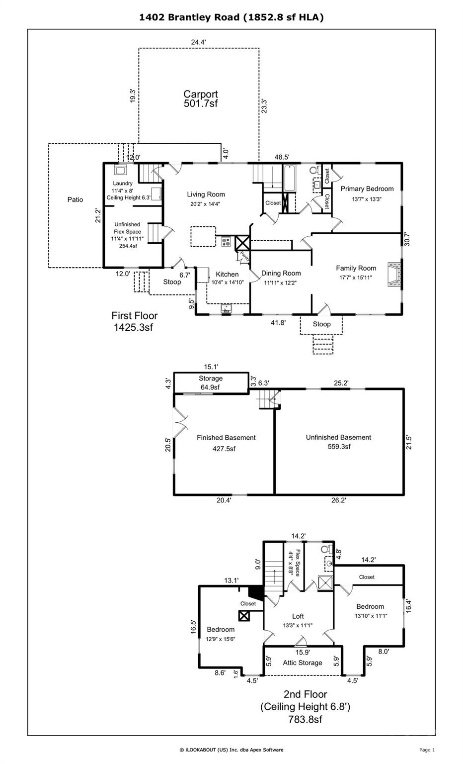
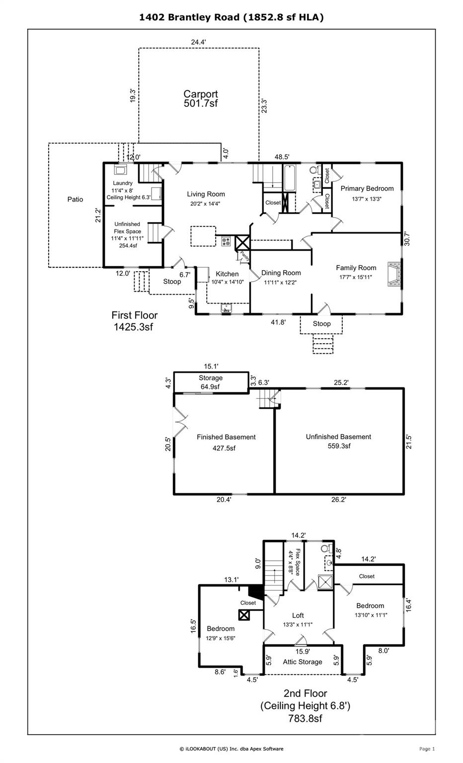
Built with the kind of craftsmanship you simply don’t see anymore, this 1938 classic offers space across three levels, with the upstairs adding an extra 783 BONUS square footage, with an EXTRA FLEX ROOM — a hands-on restoration opportunity ideal for skilled trades professionals or anyone ready to transform character into equity. French doors. Glass doorknobs. Skeleton keyholes. A cherub-adorned fireplace cover. These are not replicas — they’re original details that give this home its unmistakable historic texture. The three-level layout provides natural privacy options and flexibility for modern living. Spacious rooms and a truly unique floor plan open the door for bold design ideas, thoughtful renovations, or creative reimagining. This is a property where updates translate directly into value. The partially finished basement — previously used as a studio — includes its own exterior entrance, making it ideal for a private workspace, guest quarters, or future income-producing potential. Set on a large corner lot with NO HOA and NO CCRs, you’ll enjoy the freedom to renovate and personalize without restrictive oversight. Sturdily constructed and rich with period-specific detail, this home offers strong bones and long-term upside. Located near downtown Kannapolis with convenient access to the NC Research Campus, shopping, dining, and the revitalized city center. Washer and dryer included. One-year home warranty offered for added peace of mind. A rare opportunity to restore, modernize, and build equity in a home that already tells a story.

Request More Info:

Basic Information
MLS#: 4320766
Price: $299,000
Square Footage: 1,852
Bedrooms: 3
Bathrooms: 2 Full
Special Conditions: Estate,Third Party Approval
Acreage: 0.36
Year Built: 1938
Elementary School: Unspecified
Middle School: Unspecified
High School: Unspecified
Details
Waterfront/water view: No
Parking: Attached Carport,Driveway
HVAC: Heat Pump
Main level:   Primary Bedroom
Listing Courtesy Of: Savvy + Co Real Estate - andrea@savvyandcompany.com

Terms of use/DMCA