1694 Piper Creek Avenue Unit 4
Newton, NC 28658
$349,000 Active
Subdivision: Piper Creek

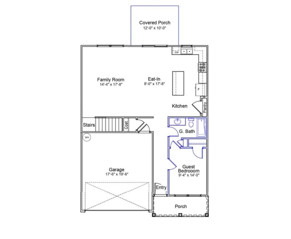
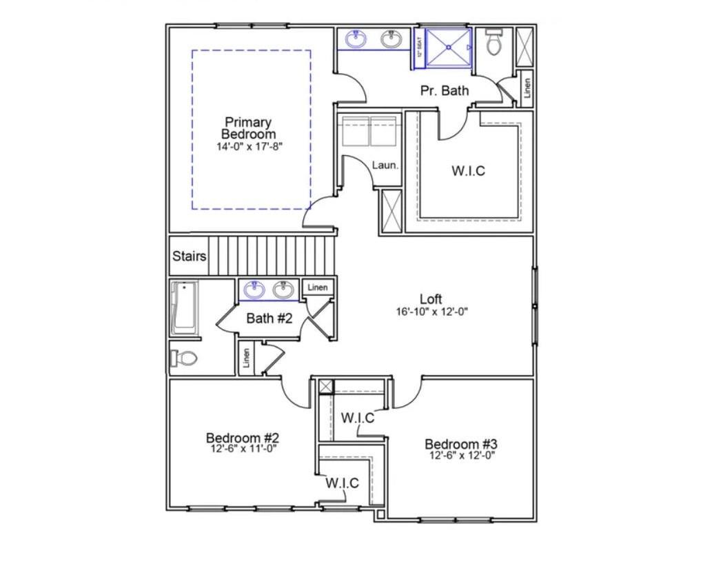
This Meriwether floor plan offers 4 bedrooms and 3 full baths, including a guest suite conveniently located on the main level. The second floor features a spacious primary suite with double sinks, a large tiled shower, and an oversized walk-in closet. Two additional bedrooms and a versatile loft provide flexible living space. The open-concept main level includes a large great room that flows into the eat-in kitchen, complete with luxury vinyl flooring throughout. Enjoy outdoor living on the 12' x 10' rear covered patio. Ask about our closing cost incentives with our preferred lender.

Request More Info:

Basic Information
MLS#: 4313138
Price: $349,000
Square Footage: 2,237
Bedrooms: 4
Bathrooms: 3 Full
Acreage: 0.21
Year Built: 2026
Elementary School: Balls Creek
Middle School: Mill Creek
High School: Bandys
Details
Waterfront/water view: No
Parking: Circular Driveway,Attached Garage
HVAC: Central,Heat Pump,Zoned
HOA: $708 / Annually
Main level:   Bathroom-Full
Upper level:   Bathroom-Full
Listing Courtesy Of: Mungo Homes - kshelton@mungo.com

Terms of use/DMCA