2058 Bethlehem Road
Kings Mountain, NC 28086
$239,900 Under Contract - Show

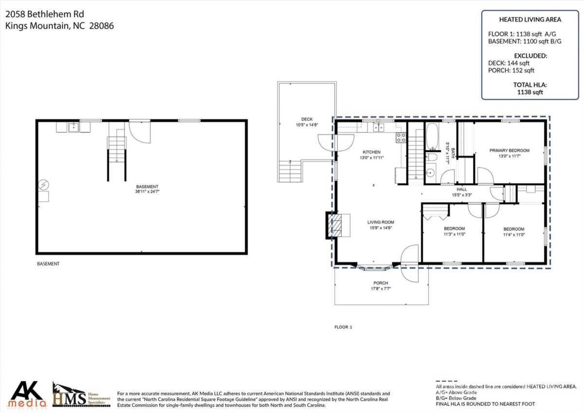
Huge Price Adjusment!! Don't let this one get away. Charming ranch on over an acre in Kings Mountain! Enjoy an open living area with a picture window and brick fireplace, bright kitchen with dining space, and easy access to a large updated deck. Three cozy bedrooms share a full hall bath. Heated/cooled unfinished basement with laundry offers potential to double your square footage. Fully fenced backyard with storage shed. Quick access to I-85, Charlotte, Gastonia, and surrounding towns are all within easy reach, making this an excellent spot for commuters as well. Whether you’re a first-time homebuyer, a growing family, or someone looking for a home with room to expand, this ranch is ready to welcome you. With its updated deck, flexible basement space, spacious yard, and serene location, it’s a home with so much to offer—and plenty of room to make it your own. Shared gravel driveway entrance with adjacent property owner. - Home to be sold as-is.

Request More Info:

Basic Information
MLS#: 4284764
Price: $239,900
Square Footage: 2,238
Bedrooms: 3
Bathrooms: 1 Full
Acreage: 1.3
Year Built: 1984
Elementary School: Unspecified
Middle School: Unspecified
High School: Unspecified
Details
Waterfront/water view: No
Parking: Driveway
HVAC: Forced Air,Natural Gas
Basement:   Laundry
Main level:   Living Room
Listing Courtesy Of: Bryan & Associates Real Estate - etaylor@bryanrealtors.com

Terms of use/DMCA