2177 NC 801 Hwy None
Advance, NC 27006
$399,900 Active

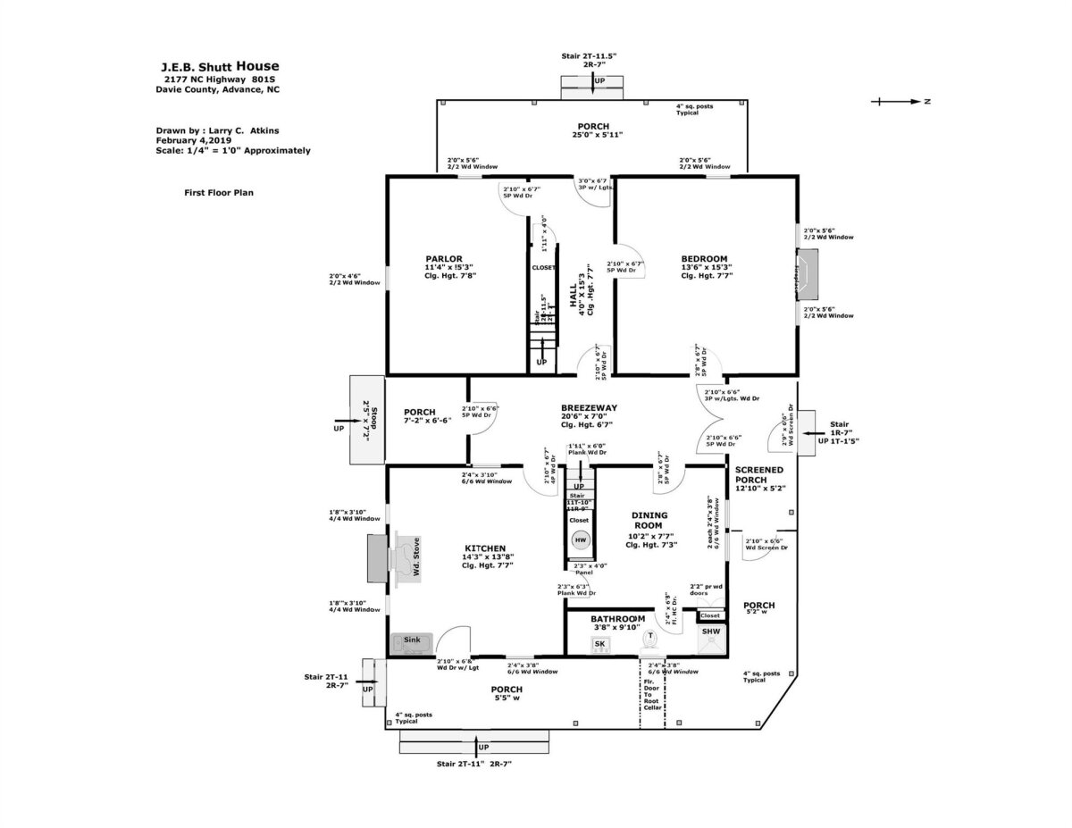
Looking for space to raise chickens, enjoy open land, or create the garden you’ve always wanted? This unique property offers just that—a historic home with modern updates on 6 picturesque acres less than 6 miles from I-40. The historically registered John Edward Belle Shutt home includes five outbuildings, fruit trees, a chicken run and coop, and a small creek/branch in the wooded corner of the property. This well-maintained, hand-crafted residence showcases rich history, with the rear one-story home and loft dating back to 1885 and the front story and jump home added in 1905. The two sections are connected by an enclosed breezeway featuring original porch flooring. Additional highlights include front and rear covered porches, seven LG Art Cool mini-split systems installed in 2022, cellar improvements, and a restored granary. A fully furnished tiny home is included and permitted as an accessory building with its own septic tank, offering flexible guest or supplemental living space.

Request More Info:

Basic Information
MLS#: 4333174
Price: $399,900
Square Footage: 1,613
Bedrooms: 3
Bathrooms: 1 Full
Acreage: 5.9
Year Built: 1885
Elementary School: Unspecified
Middle School: Unspecified
High School: Unspecified
Details
Waterfront/water view: No
Parking: Driveway
HVAC: Electric,Heat Pump
Main level:   Bathroom-Full
Upper level:   Bedroom(s)
Listing Courtesy Of: Terri Bias & Associates Inc - Terri@terribiasteam.com

Terms of use/DMCA