Under Contract - Show
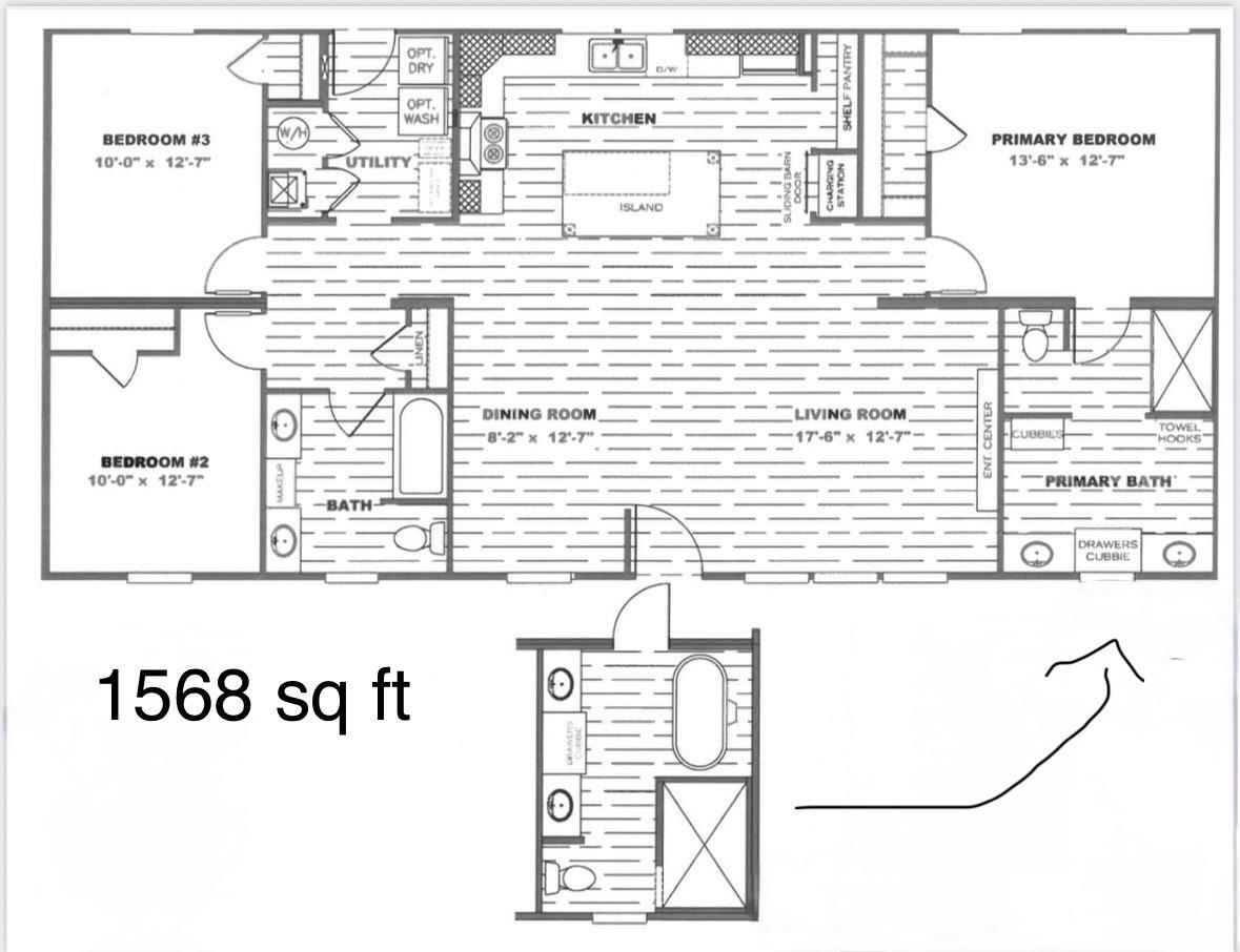
RARE FIND: A brand-new, energy efficient home on 1.27 acres with no HOA — all for under $375K in Midland! A 1-year transferrable home warranty+ 10-year HVAC unit warranty included! This is not a mobile home- This is a modular home on a permanent foundation built just like a traditional new construction home! Set in a quiet country location, you can enjoy sitting out on the large front deck or bring to life the limitless options for backyard entertaining on the flat, open lot. This home offers the best of both worlds: privacy and space, with easy access to Locust (10 mins), Concord (25 mins), and Uptown Charlotte (35 mins). Designed for today’s lifestyle, the open-concept split-bedroom layout feels bright, spacious, and functional. The heart of the home is the modern kitchen featuring an oversized island, stainless appliances, coffee bar nook, pantry, and sleek farmhouse sink — perfect for hosting guests or everyday living. The private owner’s suite offers a walk-in closet and bathroom with dual vanities, soaking tub, and separate shower. On the opposite side, two generously sized bedrooms share a large full bath with double sinks. This modular new construction is built to the same code, appraisal, and financing standards as site-built homes, while offering energy efficiency and low utility costs. Highlights: Modern Kitchen: oversized island, stainless appliances, farmhouse sink, and coffee bar nook Owner’s Suite: large shower, soaking tub, and dual vanities Energy Efficient Build: comfort and savings in mind Spacious Acreage: flat, 1.27-acre lot for gardening, outdoor living, or a workshop Move-In Ready: neutral finishes, new warranties included Location: Midland convenience with easy access to Locust, Concord, and Charlotte Opportunities like this are rare — schedule your showing today and make this beautiful new home yours! Ask your agent for the features and upgrades information!
Request More Info:
| MLS#: | 4304409 |
| Price: | $365,000 |
| Square Footage: | 1,568 |
| Bedrooms: | 3 |
| Bathrooms: | 2 Full |
| Acreage: | 1.27 |
| Year Built: | 2025 |
| Elementary School: | Bethel |
| Middle School: | C.C. Griffin |
| High School: | Central Cabarrus |
| Waterfront/water view: | No |
| Parking: | Driveway |
| HVAC: | Electric,Heat Pump |
| Exterior Features: | Fence |
| Main level: | Laundry |
| Virtual Tour: | Click here |
| Listing Courtesy Of: | Foxx Properties LLC - foxxpropertiesnc@gmail.com |