242 Cedar Lane
Rutherfordton, NC 28139
$245,000 Under Contract - No Show
Subdivision: Thermal Valley

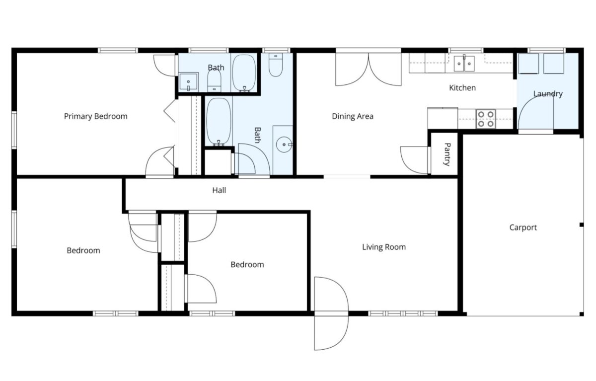
Move-in ready and full of charm! This well-maintained 3 bedroom, 2 bathroom home offers over 1,200 square feet of living space and sits on a spacious lot of over half an acre, providing plenty of room to enjoy the outdoors. Mature trees offer shade and privacy, creating a peaceful setting. Inside, you'll find a functional layout with a primary bedroom featuring its own private bath, offering a comfortable retreat. The home is clean, well cared for, and ready for its next owner. Step outside to a fully fenced backyard that is perfect for pets, outdoor activities, or gardening. The property also includes two outbuildings for additional storage, workshop space, or hobbies, plus a carport for convenient covered parking. With its large yard, move-in ready condition, and great location, this property offers the perfect blend of comfort, space, and practicality

Request More Info:

Basic Information
MLS#: 4357484
Price: $245,000
Square Footage: 1,263
Bedrooms: 3
Bathrooms: 2 Full
Acreage: 0.52
Year Built: 1976
Elementary School: Unspecified
Middle School: Unspecified
High School: Unspecified
Details
Waterfront/water view: No
Parking: Attached Carport,Driveway
HVAC: Heat Pump
Main level:   Laundry
Virtual Tour: Click here
Listing Courtesy Of: NorthGroup Real Estate LLC - melvin@wncagent.com

Terms of use/DMCA