251 W 3rd Street
Rutherfordton, NC 28139
$115,000 Under Contract - Show

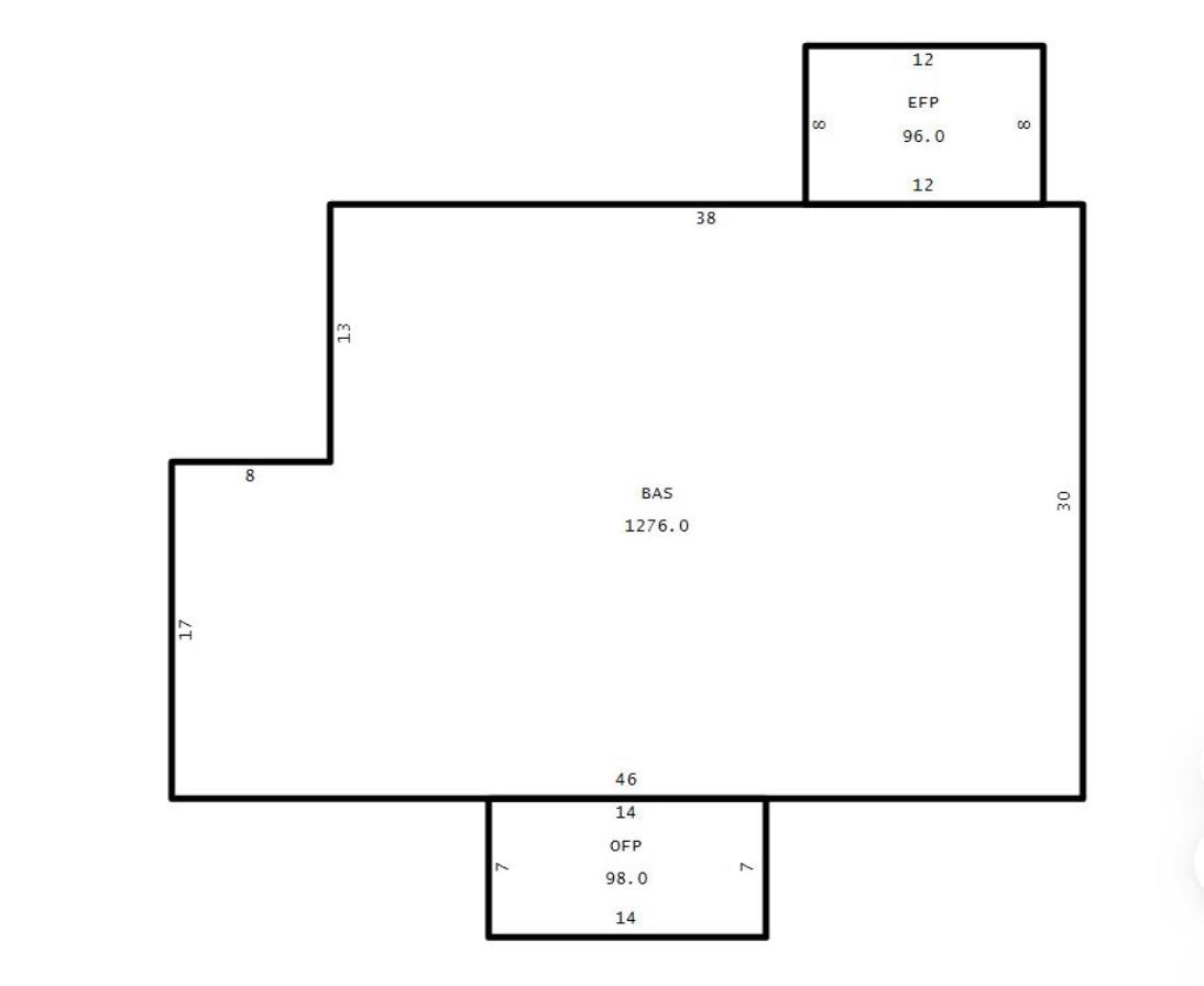
Calling all investors! Excellent opportunity with large, open lot of 0.8 acres located within walking distance of downtown Rutherfordton. The property started renovations, but unfortunately, they were halted due to Hurricane Helene. Roof is less than five years old, and the interior has been gutted, requiring new electrical, HVAC, and plumbing systems. The bathroom and kitchen have been partially started, new vinyl flooring and a new walk-in shower. Owner is real estate agent. Buyer to verify all information, agent makes no representations due to never occupying home.

Request More Info:

Basic Information
MLS#: 4362696
Price: $115,000
Bedrooms: 3
Bathrooms: 1 Full
Acreage: 0.8
Year Built: 1930
Elementary School: Rutherfordton
Middle School: R-S Middle
High School: Unspecified
Details
Waterfront/water view: No
Parking: Driveway
HVAC: Other - See Remarks,None
Main level:   Laundry
Listing Courtesy Of: Mr. Lake Lure Real Estate - stay@mrlakelure.com

Terms of use/DMCA