2701 Florida Avenue
Kannapolis, NC 28083
$220,000 Under Contract - No Show
Subdivision: Royal Oaks

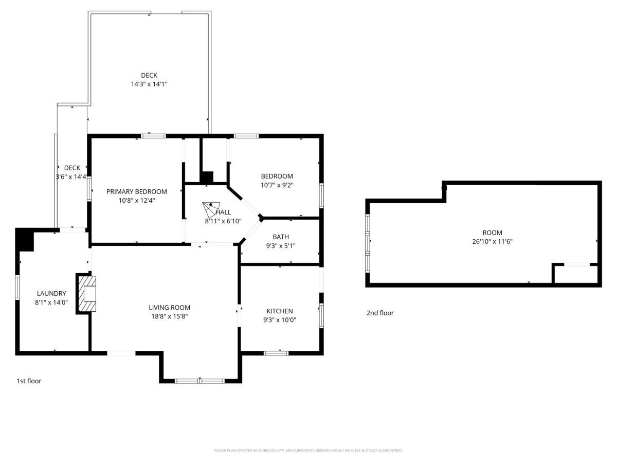
You will love this charming, corner lot home that is conveniently located to Hwy 29, I-85 & Downtown Kannapolis! Enjoy the deck overlooking the large FENCED in backyard. Mud room right off the back entrance includes washer and dryer. Kitchen has stainless steel appliances and living room has a beautiful brick fireplace. Lovely original hardwoods throughout. 300+ sq ft of unheated sq ft upstairs perfect for storage or add a mini split and have more finished living space! Don't miss out on this great home!

Request More Info:

Basic Information
MLS#: 4350556
Price: $220,000
Square Footage: 860
Bedrooms: 2
Bathrooms: 1 Full
Acreage: 0.25
Year Built: 1950
Elementary School: Royal Oaks
Middle School: Concord
High School: Concord
Details
Waterfront/water view: No
Parking: Driveway
HVAC: Natural Gas
Main level:   Mud
Upper level:   Flex Space
Listing Courtesy Of: EXP Realty LLC - hayley.lewin@exprealty.com

Terms of use/DMCA