2937 Frank Whisnant Road
Morganton, NC 28655
$369,900 Active

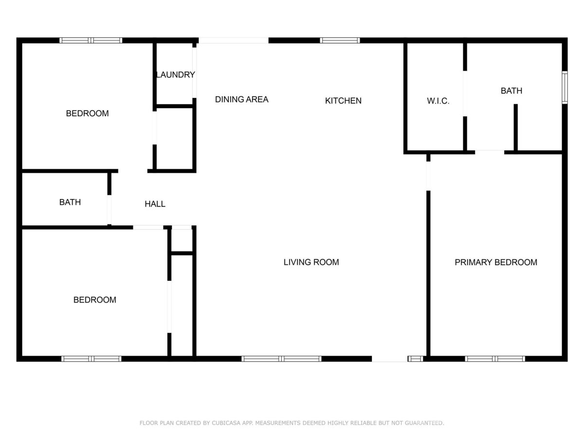
NEW CONSTRUCTION~A thoughtfully crafted, energy-smart home combining quality materials and lasting performance! This exceptional 3BR/2BA single-level home on a spacious, level lot just minutes from schools and downtown Morganton is perfect for gardening and outdoor entertaining. Note the level entry from flat driveway and 36 inch doors to primary bedroom, primary bath, and second bedroom for accessibilty. Enjoy country views, sunlight-filled rooms, and gorgeous 4-inch white oak flooring throughout. The kitchen and baths feature Carolina Custom Cabinets with granite countertops and stainless-steel appliances, while bathrooms include ceramic tile floors and one-piece acrylic tubs/showers. The primary suite offers a walk-in closet, 36-inch doors, and private bath that includes a walk-in shower with seat. Guest bath provides a tub/shower combo. Lighted closets and a functional laundry area add convenience. Built for comfort and efficiency, this home features a Fox Block foundation, sealed crawl space with dehumidifier, 2x6 exterior walls (R-19 insulation), R-44 attic insulation, and a high-efficiency Trane heat pump. Low-maintenance exteriors include Everlast siding, Trex decks with aluminum railings, PVC-covered posts, and treated lumber.

Request More Info:

Basic Information
MLS#: 4239780
Price: $369,900
Square Footage: 1,500
Bedrooms: 3
Bathrooms: 2 Full
Acreage: 0.72
Year Built: 2025
Elementary School: Oak Hill
Middle School: Table Rock
High School: Freedom
Details
Waterfront/water view: No
Parking: Driveway
HVAC: Heat Pump
Main level:   Laundry
Virtual Tour: Click here
Listing Courtesy Of: McCombs & Hoke Real Estate - starla@mccombsandhoke.com

Terms of use/DMCA