3201 Donahue Drive
Nebo, NC 28761
$1,449,000 Active
Subdivision: 1780

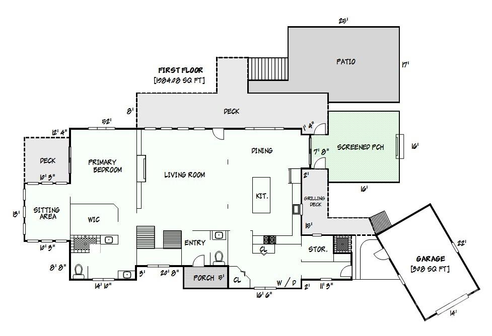
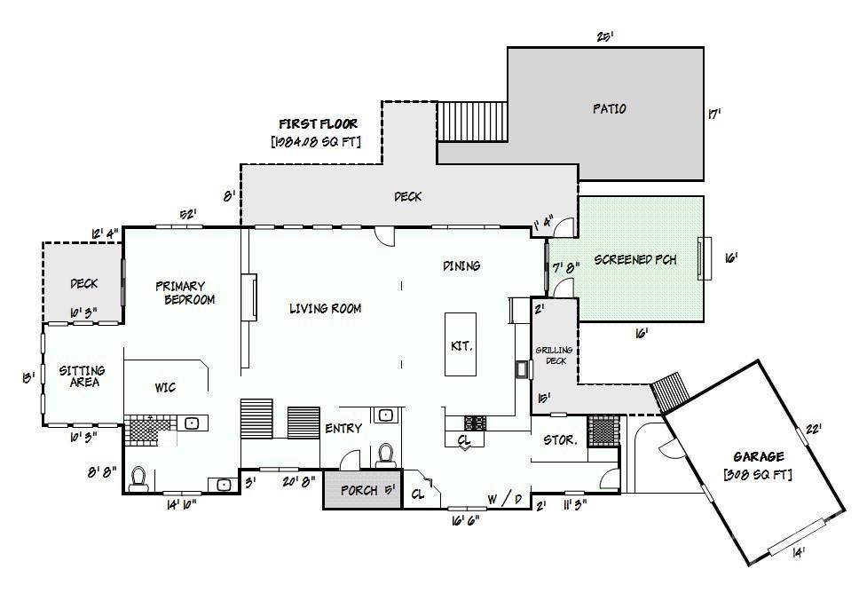
Timeless craftsmanship blended with gracious Lake James community living—that’s how we describe this home. The setting is wooded and private, near the 1780 Community pond and the trails of Hully Gully, which allow you to walk down to the lakeshore or Camp Lake James in minutes. This spacious home is functional for full-time living, but it’s also allowed to be a short term rental with significant income potential. It has a large kitchen with custom cabinetry, gas range, wine cooler, granite countertops and a large quartzite island. The downstairs living area has wide-planked hardwood floors and a stone fireplace with vented gas logs, custom bookcases and arts and crafts style details. The living area also leads to a custom screened porch with cathedral tongue and groove ceiling, wood fireplace and stone chimney. A charming reading nook under the staircase provides a peaceful escape, while also serving as a twin bed for a guest. The extra large primary bedroom suite has hardwood floors that flow into a private sunroom. It includes a private deck and a walk-in closet. The primary bathroom has tile floor, walk-in tile shower, water closet, independent sink vanities with granite tops and custom drawers for linens and towels. Upstairs, you’ll find two large bedrooms separated by a cozy media den and a jack and jill bathroom. Each bedroom has two built-in twin beds and is also roomy enough for a king-sized bed. Spacious floored attic space is accessible through the bedrooms on both sides of the house. The front door entryway has a slate floor and a powder room. The breezeway entry is through a long tiled mudroom, which includes laundry, pantry, hall closet and storage room/kennel with a dog access door. The stone breezeway has a tiled outdoor shower and leads to the garage. The back of the house has a yard surrounded by woods with a quiet lounging/exercise platform and a large patio with a hot tub. The house has a sealed crawl space, only one owner and has never been rented. It also comes with a boat slip on the Patton Docks. Ownership in 1780 includes membership to Camp Lake James and its amazing amenities and community events. Amenities include restaurant, fitness center. kids pool and junior olympic size pool, hot tub, tennis, pickleball, beach with paddle boards and kayaks, docks, and outdoor bar. Check out Camplakejames.com.

Request More Info:

Basic Information
MLS#: 4351255
Price: $1,449,000
Square Footage: 2,939
Bedrooms: 3
Bathrooms: 2 Full, 2 Half
Acreage: 1.11
Year Built: 2013
Elementary School: Unspecified
Middle School: Unspecified
High School: Unspecified
Details
Waterfront/water view: No
Parking: Driveway,Garage Door Opener,Garage Faces Front,Garage Shop
HVAC: Heat Pump
Exterior Features: Above Ground Hot Tub / Spa,Hot Tub,Outdoor Shower
HOA: $4200 / Annually
Main level:   Bed/Bonus
Upper level:   Den
Virtual Tour: Click here
Listing Courtesy Of: Keller Williams Unified - fletcher@lakejames.com

Terms of use/DMCA