3279 Eller Drive Extension
Hickory, NC 28602
$314,990 Active
Subdivision: Overture Pointe

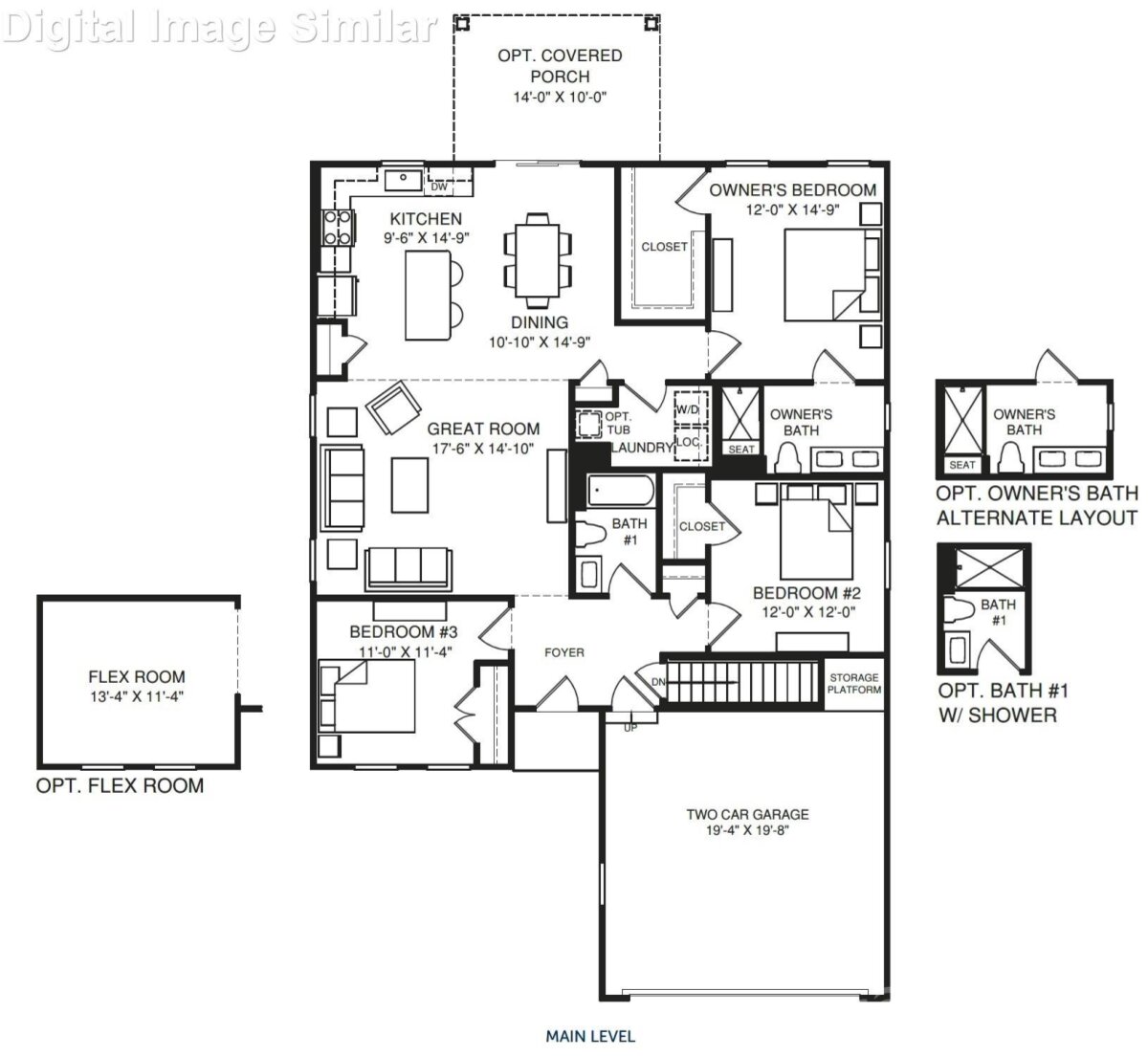
Step into a thoughtfully designed home where comfort meets versatility. The welcoming foyer offers dual entry, leading to a flexible third bedroom easily converting into a flex space—second bedroom perfect for guests, a home office, or a creative retreat. The open-concept kitchen boasts an island, stainless steel appliances, and optional gas range, flowing seamlessly into the great room and dining area—ideal for entertaining. Choose an optional covered porch for relaxed outdoor living. The owner’s suite is a peaceful haven with a walk-in closet and direct access to the laundry room. Enjoy a guest bath with a tub or alternate shower. Community perks include two pickleball courts and proximity to Catawba Valley Medical Center. Optional tankless water heater available. Photos for inspiration only. Home to be built. Primary residence. Please use GPS address 3225 Short Road, Hickory, NC 28602

Request More Info:

Basic Information
MLS#: 4371465
Price: $314,990
Square Footage: 1,533
Bedrooms: 3
Bathrooms: 2 Full
Acreage: 0.15
Year Built: 2026
Elementary School: Blackburn
Middle School: Jacobs Fork
High School: Fred T. Foard
Details
Waterfront/water view: No
Parking: Driveway,Attached Garage,Garage Door Opener,Garage Faces Front
HVAC: Natural Gas
HOA: $75 / Monthly
Main level:   Flex Space
Listing Courtesy Of: Smith Capital Partners LLC - smithcapitalpartnersllc@gmail.com

Terms of use/DMCA