3565 Big Timber Drive
Sherrills Ford, NC 28673
$549,000 Active
Subdivision: Sherrill Cove

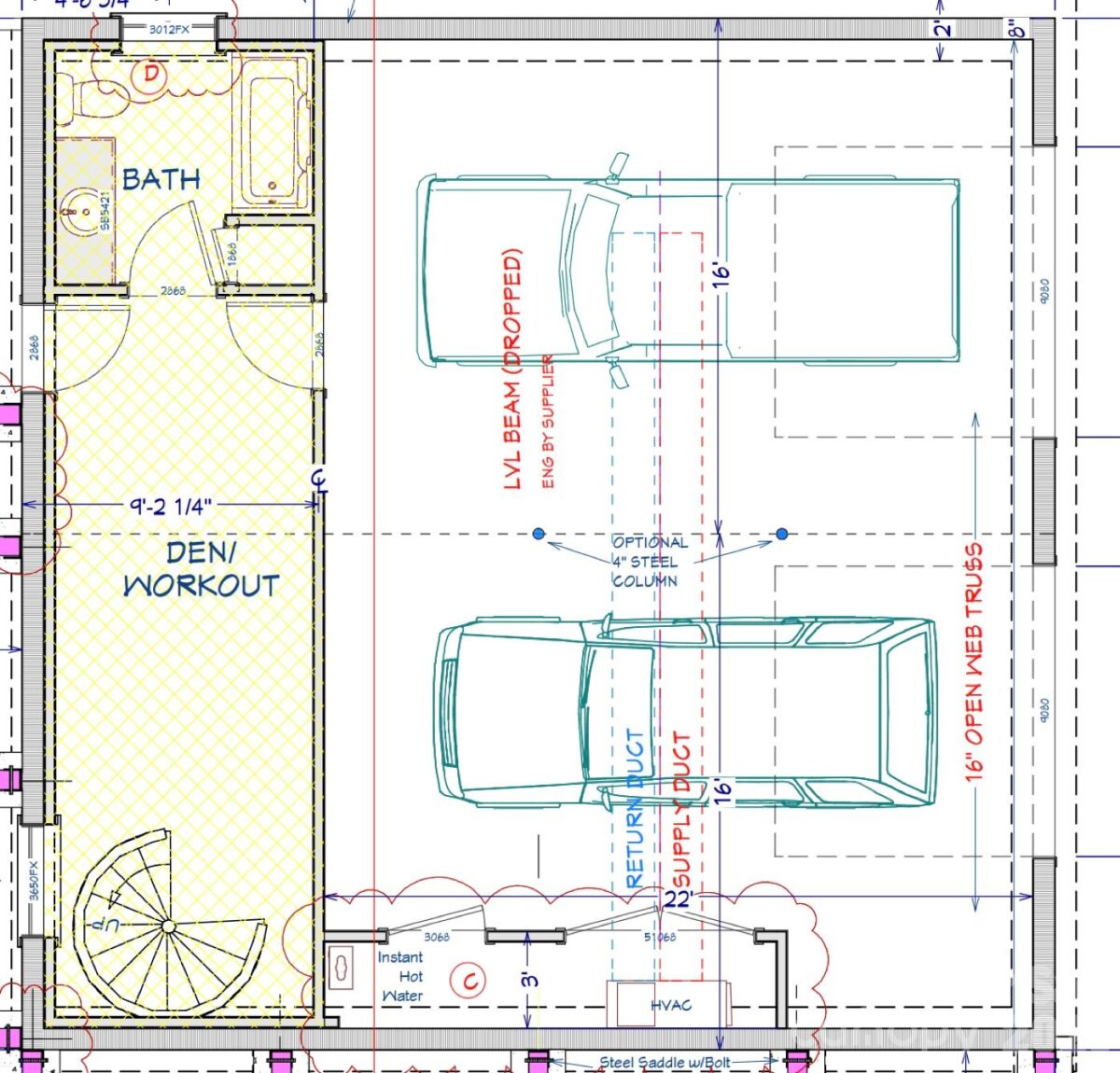
A Contemporary dream for efficient living with all the comforts. Builder will begin construction soon and buyers can choose the final touches. Main level has 2 Car Garage, finished Office/Den/Workout and Full Bath. An Elevator goes in place of the spiral stairs shown on plan, takes you to the upper level for an Open Living and Gourmet Kitchen. Kitchen will include high end stainless steel appliances. Primary Bedroom has a huge Closet and Laundry. Primary Bath includes oversized shower and dual sinks. Located on 0.68 acre lot with well and septic. Property will come with lake access and day dock within a short distance from home. Buyer can add pool $125k, hot tub $45k, pool house $75k. Room for an additional Garage.

Request More Info:

Basic Information
MLS#: 4271835
Price: $549,000
Square Footage: 1,291
Bedrooms: 1
Bathrooms: 2 Full
Acreage: 0.68
Year Built: 2025
Elementary School: Unspecified
Middle School: Unspecified
High School: Unspecified
Details
Waterfront/water view: No
Parking: Driveway,Attached Garage,Garage Door Opener
HVAC: Forced Air,Propane
Main level:   Office
Upper level:   Kitchen
Listing Courtesy Of: COMPASS - Doug.Bishop@compass.com

Terms of use/DMCA