3678 Sunset Grill Street
Connelly Springs, NC 28612
$399,900 Under Contract - No Show

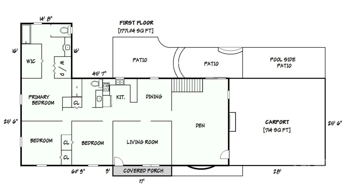
Prime 4.28-Acre Retreat in East Burke – Endless Possibilities! Discover unmatched versatility on 3 combined parcels totaling 4.28 acres at the end of Sunset Grill Street. With easy access to Hwy 70 and I-40, enjoy rural privacy just minutes from town—perfect for homesteading, hobby farming, equestrian pursuits, multi-generational living, workshop, rental income, or simply space to breathe. Key Features: • Main Ranch Home: 3BR/2BA with partial unfinished basement and refreshing in-ground pool. • Equestrian-Ready Barn: Stalls, tack room, and fenced pasture for horses or livestock. • Versatile 1,000 SF Block Building: Ideal workshop, storage, or convert to additional dwelling. • Abundant Land: Room for gardens, rentals, or expansion on gently rolling terrain. Seize this rare opportunity to create your dream lifestyle. Don't miss out—schedule a viewing today!

Request More Info:

Basic Information
MLS#: 4315064
Price: $399,900
Square Footage: 1,771
Bedrooms: 3
Bathrooms: 2 Full
Acreage: 4.28
Year Built: 1964
Elementary School: Hildebran
Middle School: East Burke
High School: East Burke
Details
Waterfront/water view: No
Parking: Attached Carport,Driveway
HVAC: Heat Pump
Exterior Features: Fence
Main level:   Bathroom-Full
Listing Courtesy Of: Paul R Henry Appraisal & Real Estate LLC - callpaulhenry@gmail.com

Terms of use/DMCA