3842 Avalon Avenue Unit Lot 1
Charlotte, NC 28208
$799,000 Active
Subdivision: Enderly Park

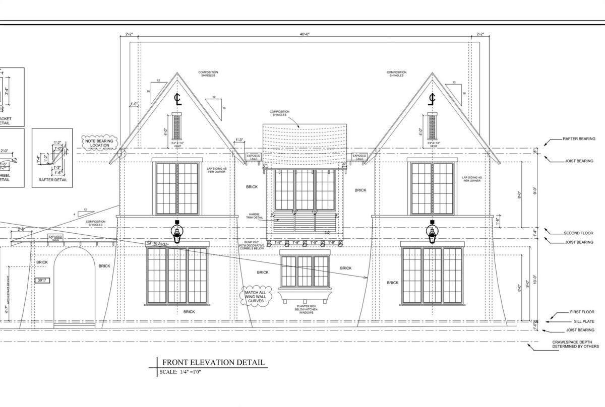
Opportunity to reserve a to-be-built Forte Builders semi-custom home! This is a land/home package and is one of 5 lots in a row on Avalon Ave. with planned custom home builds by Forte Builders. Two homes are already completed, 3 available lots remaining. Numerous other new construction builds completed in the immediate area. Home to be contracted and built by Forte Builders with the option to select certain finishes or upgrades! Soon breaking ground with estimated completion in Spring 2026. This row of lots/homes is located in a pocket of Enderly Park that is seeing heavy revitalization and is only a moment away from all the development action; coffee shops, restaurants & bars, Coterie Yoga, Xgolf, Lucky Dog Bark & Brew, local shops, Savona Mill and more! Refer to MLS #4307978 where this is also listed as an option to purchase just the current vacant lot, listed at $225,000. Agent has interest.

Request More Info:

Basic Information
MLS#: 4307948
Price: $799,000
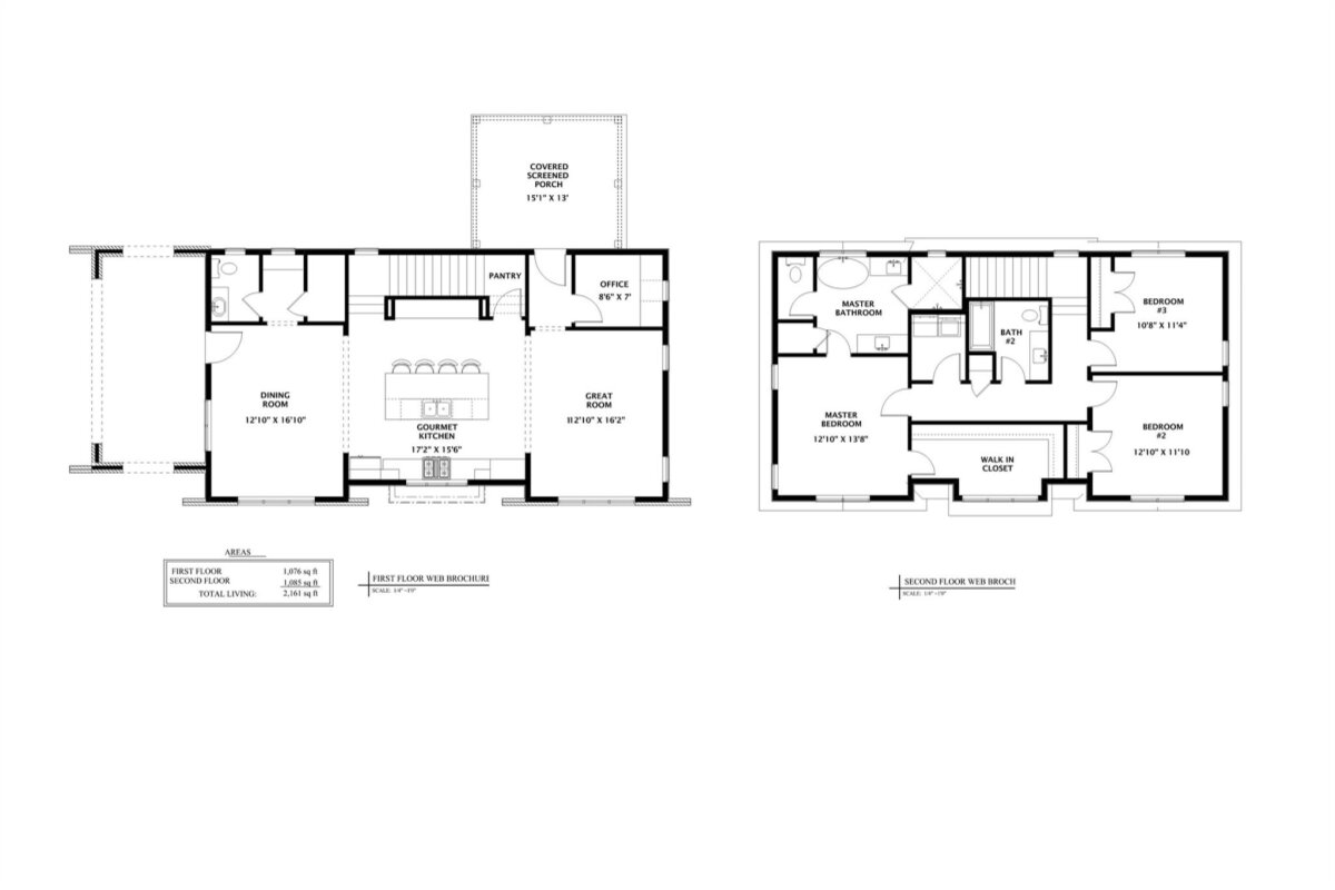
Square Footage: 2,201
Bedrooms: 3
Bathrooms: 2 Full, 1 Half
Acreage: 0.14
Year Built: 2026
Elementary School: Westerly Hills
Middle School: J.W. Wilson
High School: Harding University
Details
Waterfront/water view: No
Parking: Driveway
HVAC: Central,Heat Pump,None
Main level:   Bathroom-Half
Upper level:   Bathroom-Full
Listing Courtesy Of: 5 Points Realty - jchance@5pointsrealty.com

Terms of use/DMCA