443 Fisher Farm Court
China Grove, NC 28023
$850,000 Active
Subdivision: Fisher Farm Estates

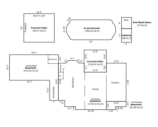
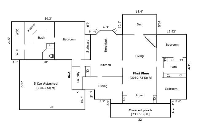
Beautiful, brick home on almost one acre cul-de-sac lot. Located in the Fisher Farm Estates subdivision of China Grove, within minutes of The Warrior Golf Club. Split bedroom plan features three bedrooms and two full baths on the main floor. A third full bath is in the pool cabana. Same owner since construction. Large kitchen features island with breakfast bar plus dining area with bay window. Electric range, built-in desk, and built-in pantry. Spacious laundry room has storage closet and sink. Primary suite includes private water closet, separate vanities, large walk-in shower, garden tub, and walk-in closet. Fully finished basement with flex room, rec room and media room complete with theatre set-up including seating, screen, and projector. Basement opens to covered outdoor patio, in-ground saltwater pool, cabana, and gorgeous outdoor kitchen with dining area and wood-burning fireplace. Yard is impeccably landscaped. Irrigation system. Two-car garage plus third bay for storage. Basement includes a large amount of storage space with convenient access through garage door. This home has been extremely well maintained!

Request More Info:

Basic Information
MLS#: 4316501
Price: $850,000
Square Footage: 4,836
Bedrooms: 3
Bathrooms: 2 Full
Acreage: 0.96
Year Built: 2000
Elementary School: Millbridge
Middle School: China Grove
High School: South Rowan
Details
Waterfront/water view: No
Parking: Driveway,Attached Garage,Garage Faces Side
HVAC: Heat Pump
Exterior Features: In-Ground Irrigation,Outdoor Kitchen,Other - See Remarks
Basement:   Recreation Room
Main level:   Dining Room
Virtual Tour: Click here
Listing Courtesy Of: Keller Williams Premier - allisonwightman@kw.com

Terms of use/DMCA