4744 Polk Ford Road
Stanfield, NC 28163
$829,000 Under Contract - Show

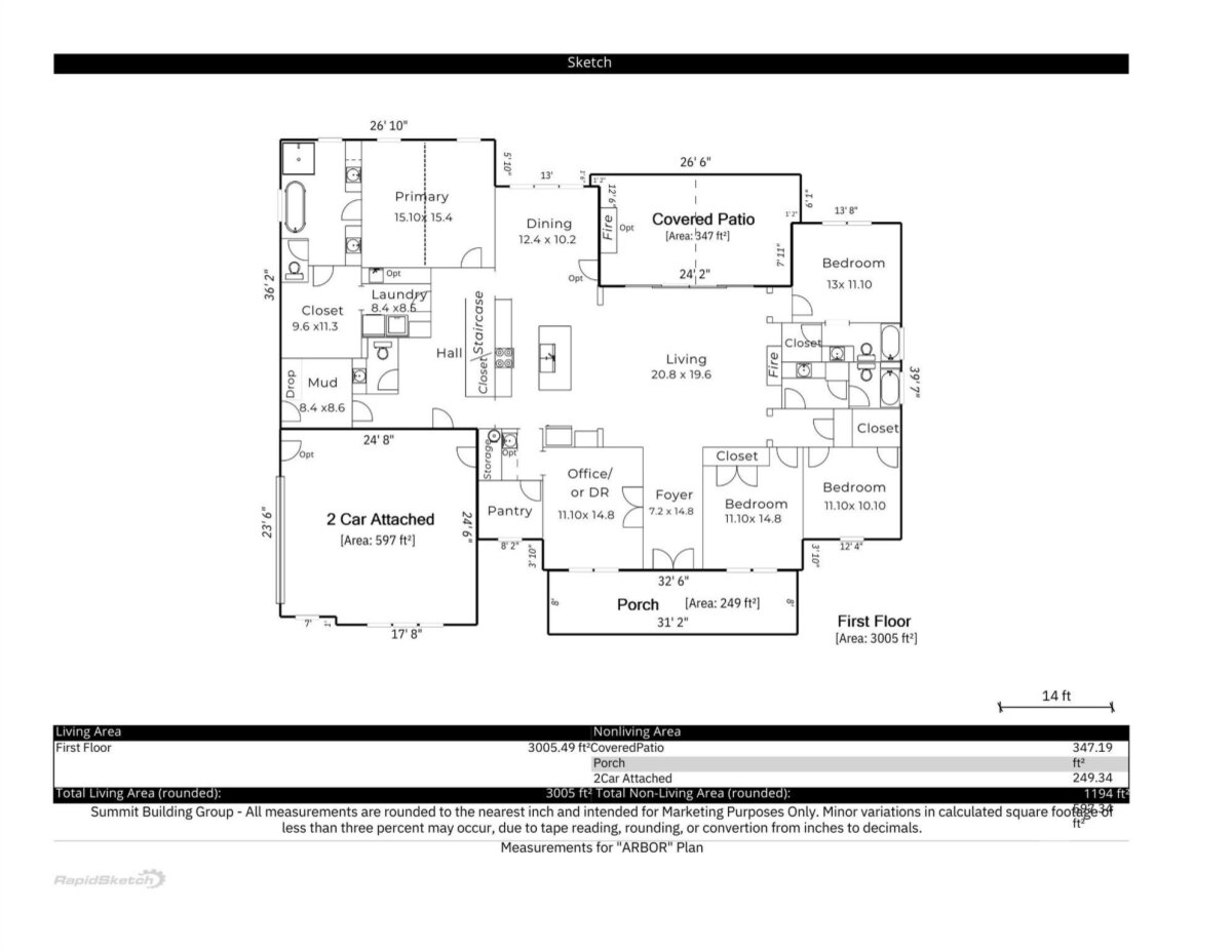
Tucked back off Polk Ford Road down a private paved driveway, this 3,005 sq ft Arbor floor plan offers privacy and flexibility in a peaceful country setting. The gently sloping homesite features a natural creek bed along the rear property line. This popular one-story layout includes four bedrooms plus a dedicated office, designed with both functionality and flow in mind. The open-concept living area centers around a gourmet kitchen with an oversized island and a spacious walk-in pantry, seamlessly connecting to the main living spaces for easy entertaining and everyday comfort. If you need more space, an optional bonus room plus full bath adds great flexibility. This upgrade is $86,000. With no HOA and covenants that allow for a potential outbuilding in a designated area of the lot, this property offers rare flexibility for those needing additional storage, workshop space, or future expansion. NOTE: There will be a privacy fence added behind the neighbor's back yard, providing additional privacy for this parcel. Loaded with upgraded finishes included (just come & choose your colors!) and thoughtful details throughout, this home combines smart design, versatility, and elevated features in a desirable rural setting. Check out our included features. If there is an upgrade you'd like to add, we can do it!

Request More Info:

Basic Information
MLS#: 4350602
Price: $829,000
Square Footage: 3,005
Bedrooms: 4
Bathrooms: 3 Full, 1 Half
Acreage: 2.33
Year Built: 2026
Elementary School: Stanfield
Middle School: West Stanly
High School: West Stanly
Details
Waterfront/water view: No
Parking: Attached Garage,Garage Faces Side
HVAC: Electric,Forced Air,Heat Pump
Main level:   Dining Room
Listing Courtesy Of: Sun Valley Realty - svmattmasucci@gmail.com

Terms of use/DMCA