521 Coman Lane
Kings Mountain, NC 28086
$590,000 Under Contract - No Show
Subdivision: Coman Estates

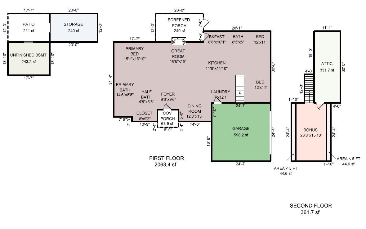
Beautiful full-brick home on the highly sought-after Coman Lane of the Kings Mountain Country Club community. This elegant residence showcases exceptional architectural craftsmanship, high ceilings, and timeless design throughout. The main-level primary suite features a tray ceiling, a private en suite bath, a large walk-in closet, and abundant natural light. The open-concept living area centers around a cozy fireplace and flows seamlessly into the kitchen, complete with granite countertops and gleaming hardwood floors. Plantation shutters accent the living and dining rooms on the main floor. A dedicated laundry room and a spacious bonus room above the garage offer added comfort and versatility for modern living. Step outside to the screened in back deck—complete with a hot tub (conveys)—overlooking the custom swimming pool and a functional yard with additional open space behind the pool, perfect for kids to play or for outdoor entertaining. Additional highlights include a two-car garage and two basement-level storage areas conveniently located by the pool.

Request More Info:

Basic Information
MLS#: 4315274
Price: $590,000
Square Footage: 2,425
Bedrooms: 3
Bathrooms: 2 Full, 1 Half
Acreage: 0.5
Year Built: 2007
Elementary School: North
Middle School: Kings Mountain
High School: Kings Mountain
Details
Waterfront/water view: No
Parking: Attached Carport
HVAC: Natural Gas
Exterior Features: Above Ground Hot Tub / Spa,In-Ground Irrigation
Main level:   Primary Bedroom
Listing Courtesy Of: Point 135 Real Estate - russputnam@point135.com

Terms of use/DMCA