5325 US 70 Highway
Marion, NC 28752
$599,000 Active

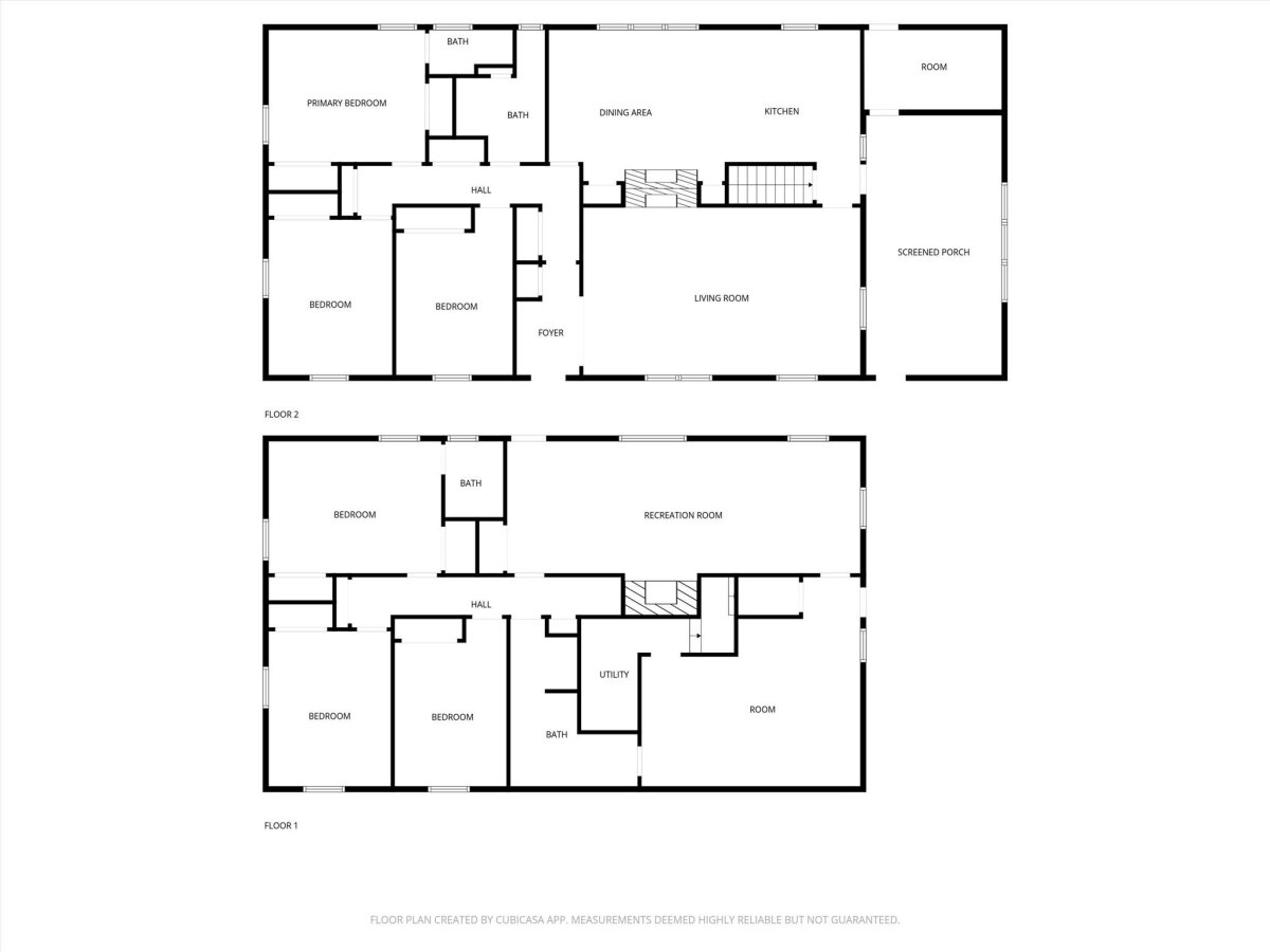
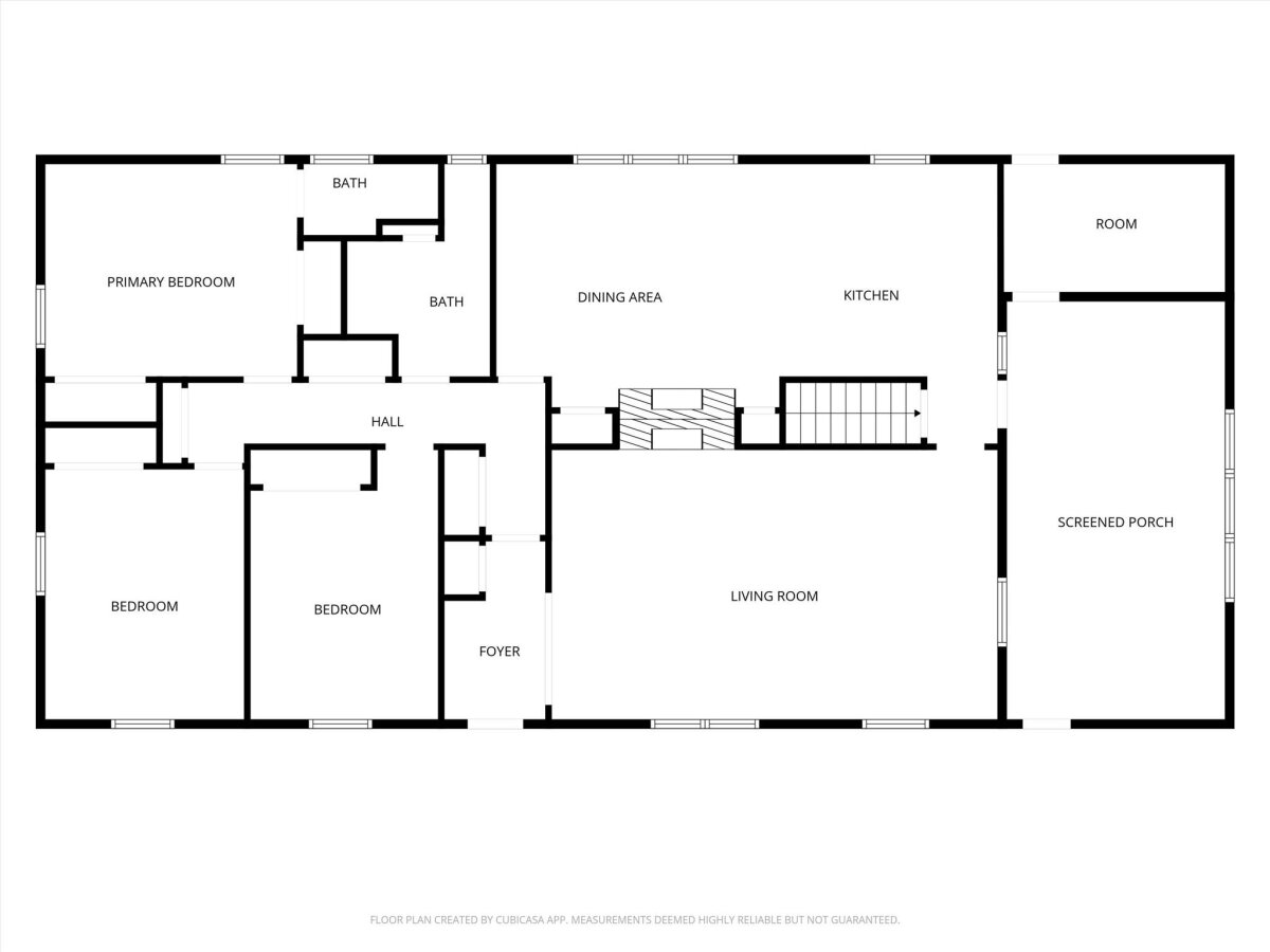
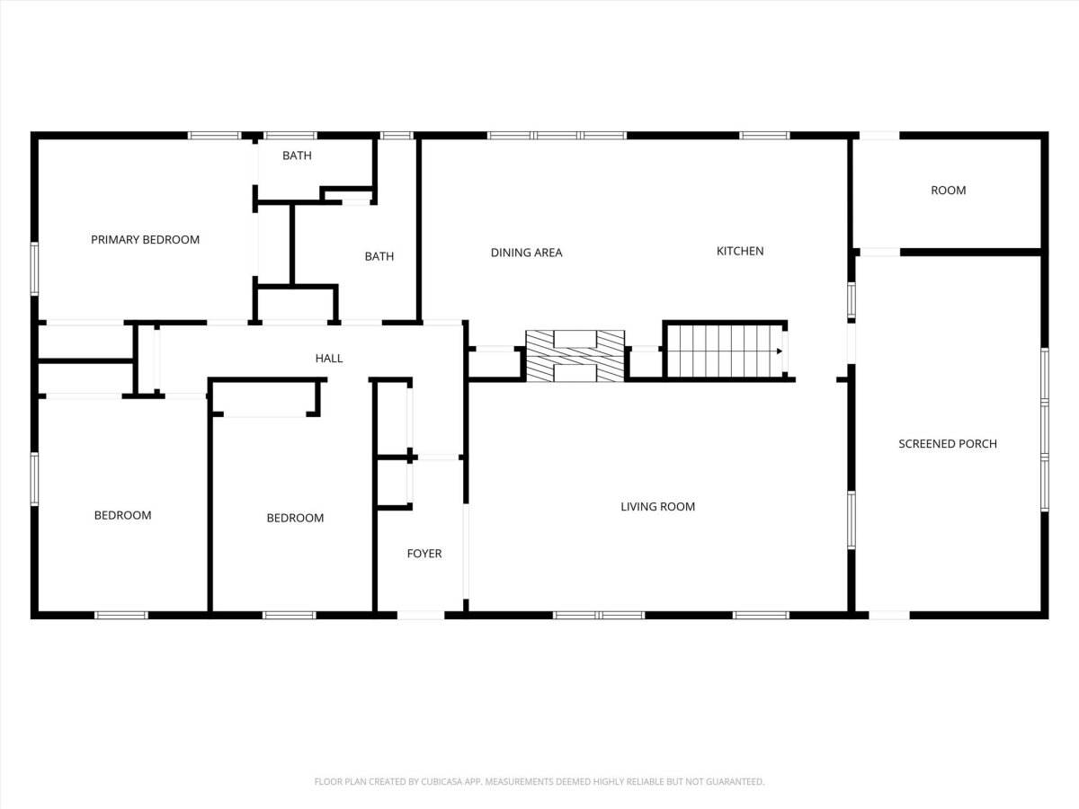
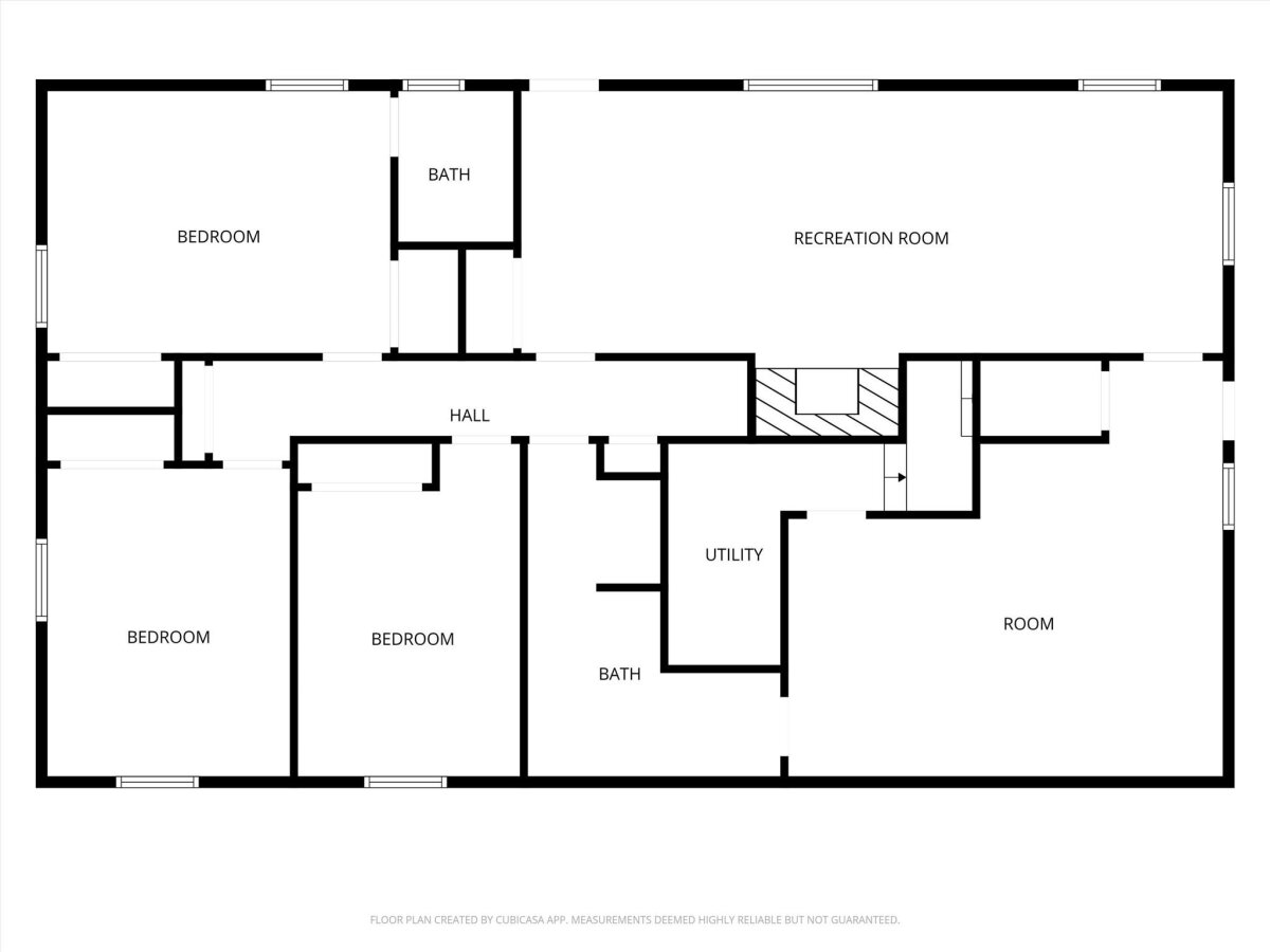
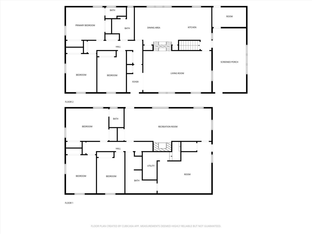
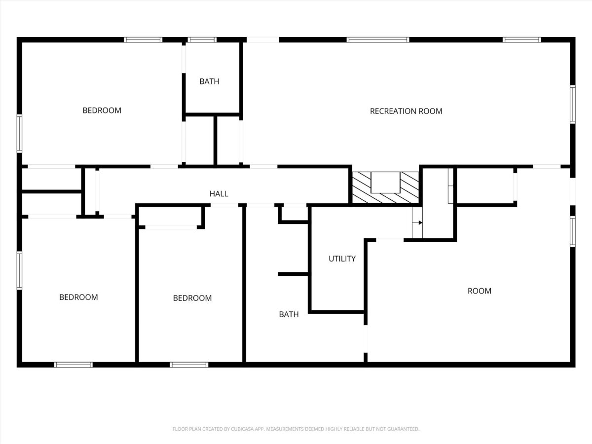
Welcome to 5325 US Hwy 70 W, Marion NC—a spacious brick ranch with plenty of room for everyone! Conveniently located just a short drive to Marion, Black Mountain, and Asheville, this home offers flexibility and comfort on 1.18 acres. The main level features 3 bedrooms, 2 full baths, a kitchen with dining area and fireplace, a bright living room, bonus room, and hardwood flooring throughout. Step outside to the deck and enjoy the peaceful outdoor setting. The basement is a complete second living space with its own kitchen, dining and living areas, 2 baths, and 3 additional rooms that mirror the main-level bedrooms—plus a garage/carport with separate entrance. It’s perfect for a rental or income-producing opportunity, multi-generational living, or a guest suite for family and friends. A large powered workshop with lean-to provides space for tools, storage, or hobbies, making this property as practical as it is inviting. With size, location, and potential, this home is a must-see!

Request More Info:

Basic Information
MLS#: 4305207
Price: $599,000
Square Footage: 3,728
Bedrooms: 3
Bathrooms: 4 Full
Acreage: 1.18
Year Built: 1966
Elementary School: Pleasant Gardens
Middle School: West McDowell
High School: McDowell
Details
Waterfront/water view: No
Parking: Basement,Attached Carport,Driveway
HVAC: Heat Pump
Basement:   Bonus Room
Main level:   Bathroom-Full
Listing Courtesy Of: ERA Live Moore - tami_newman@yahoo.com

Terms of use/DMCA