557 Emerald Parkway
Rutherfordton, NC 28139
$449,900 Under Contract - Show
Subdivision: Emerald Lake

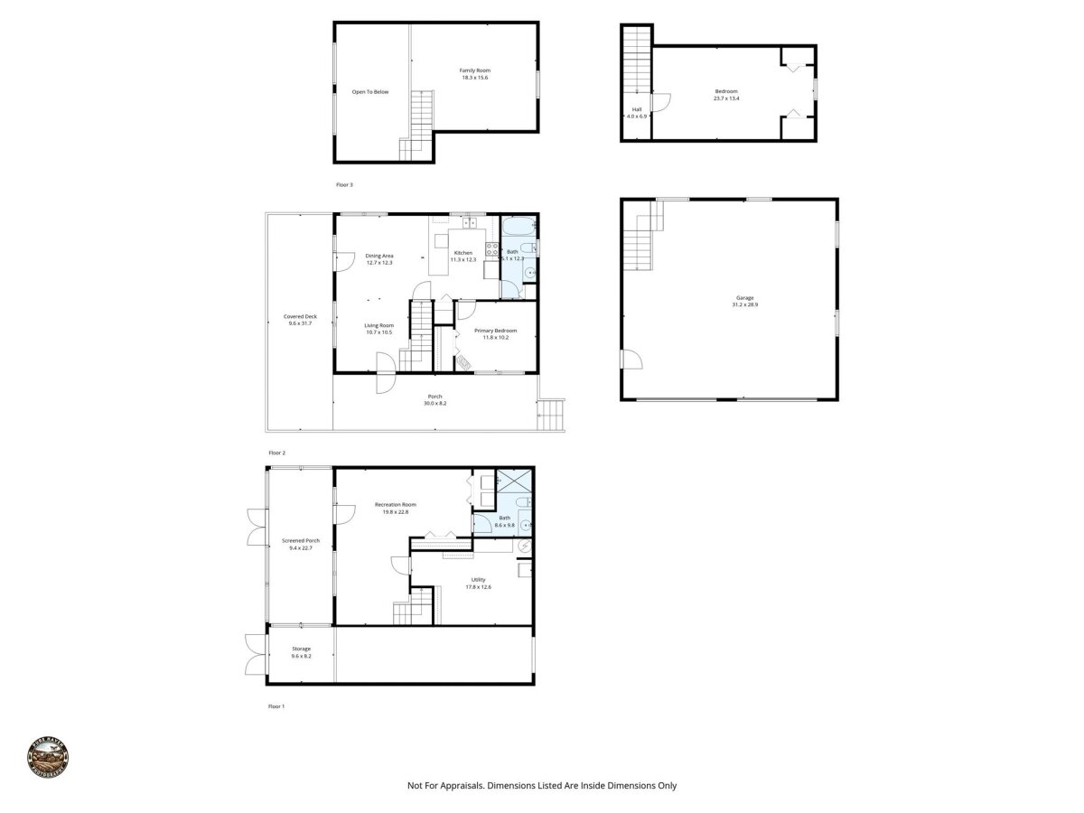
Cozy log cabin with a 2-car detached garage at the tip of a quiet cul-de-sac, overlooking gorgeous year-round, long range mountain views and the adjoining Emerald Lake. Front-to-side wrap-around covered porch perched above this 3.07-acre parcel offers a peaceful setting & sunsets. The main level boasts an open concept cathedral ceiling living room, kitchen with a nice breakfast bar, dining area, laundry closet, full bathroom, and primary bedroom. An add'l bedroom or sleeping area for guests is in the loft overlooking the great room and mountain views. Downstairs in the walk-out finished basement you’ll find a large en-suite bedroom with an office/flex space, full bath, laundry closet, and a screened, covered porch with access to the backyard. There is also an unfinished fully insulated storage space that could be converted to finished, and another exterior entrance to a tool storage area. The main level two car garage has a finished unheated area above the garage with two closets that could be turned into another en-suite bedroom by adding plumbing in one of the closets for a bath and utilizing one of the unused mini splits from the main house. Concrete drive with ample parking and a RV parking area with water, electric and sewer hookups. Brand new HVAC system installed Nov. 1st, 2025.

Request More Info:

Basic Information
MLS#: 4317909
Price: $449,900
Square Footage: 1,517
Bedrooms: 3
Bathrooms: 2 Full
Acreage: 3.07
Year Built: 2003
Elementary School: Pinnacle
Middle School: RS
High School: R-S Central
Details
Waterfront/water view: No
Parking: Detached Garage
HVAC: Ductless,Heat Pump
Main level:   Primary Bedroom
Listing Courtesy Of: Team Cleary Real Estate Inc - TeamClearyWNC@gmail.com

Terms of use/DMCA