581 Nesbe Street Unit 2223
Lancaster, SC 29720
$357,490 Active
Subdivision: Basildon

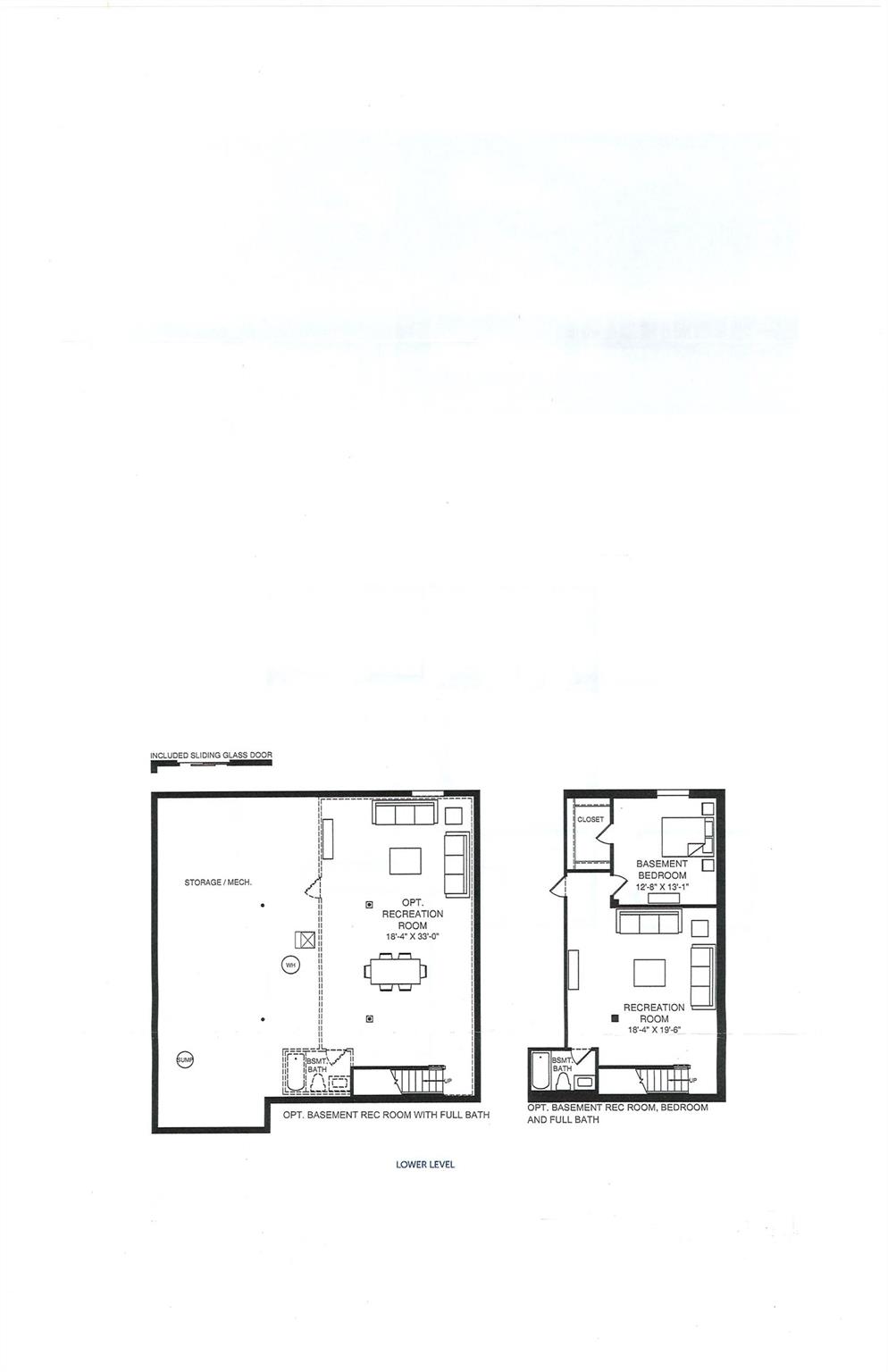
Welcome home to the Grand Cayman in the desirable Basildon neighborhood at Basildon Ranches, where modern one-level living meets a vibrant community lifestyle. This most popular open-concept ranch floorplan offers a bright, inviting feel with a stylish kitchen featuring granite countertops, a spacious central island with pull-out shelving, stainless steel GE appliances including a refrigerator, convenient lower pull-out trays, and a built-in trash bin—all flowing seamlessly into the family room for easy entertaining and everyday comfort. Large windows fill the home with natural light, enhancing its warm and pleasant atmosphere. The spacious primary suite accommodates a king-size bed and includes a generous walk-in closet and a private en-suite bath with a semi-frameless walk-in shower. The partially finished basement adds versatility with a rec room, bedroom, full bathroom, deck access, and a large unfinished storage area, offering both flexibility and future potential. Buyers can also personalize the home with designer finish selections. Beyond the home, Basildon Ranches offers amenities such as a dog park, playground, pickleball courts, and scenic walking trails, all just 15 minutes from Indian Land, SC and a short drive to Waxhaw, NC for shopping, dining, parks, and historic downtown charm. Plus, receive up to $10,000 in closing cost credits when using our preferred lender. Call today to schedule your tour of our community and fully furnished model home!

Request More Info:

Basic Information
MLS#: 4263106
Price: $357,490
Square Footage: 2,339
Bedrooms: 4
Bathrooms: 3 Full
Acreage: 0.15
Year Built: 2026
Elementary School: North
Middle School: A.R. Rucker
High School: Lancaster
Details
Waterfront/water view: No
Parking: Driveway,Attached Garage,Garage Door Opener
HVAC: Electric
Exterior Features: Lawn Maintenance
HOA: $110 / Monthly
Basement:   Bedroom(s)
Main level:   Bedroom(s)
Listing Courtesy Of: Smith Capital Partners LLC - smithcapitalpartnersllc@gmail.com

Terms of use/DMCA