6243 Scuttle Lane
Denver, NC 28037
$498,500 Active
Subdivision: Trilogy Lake Norman

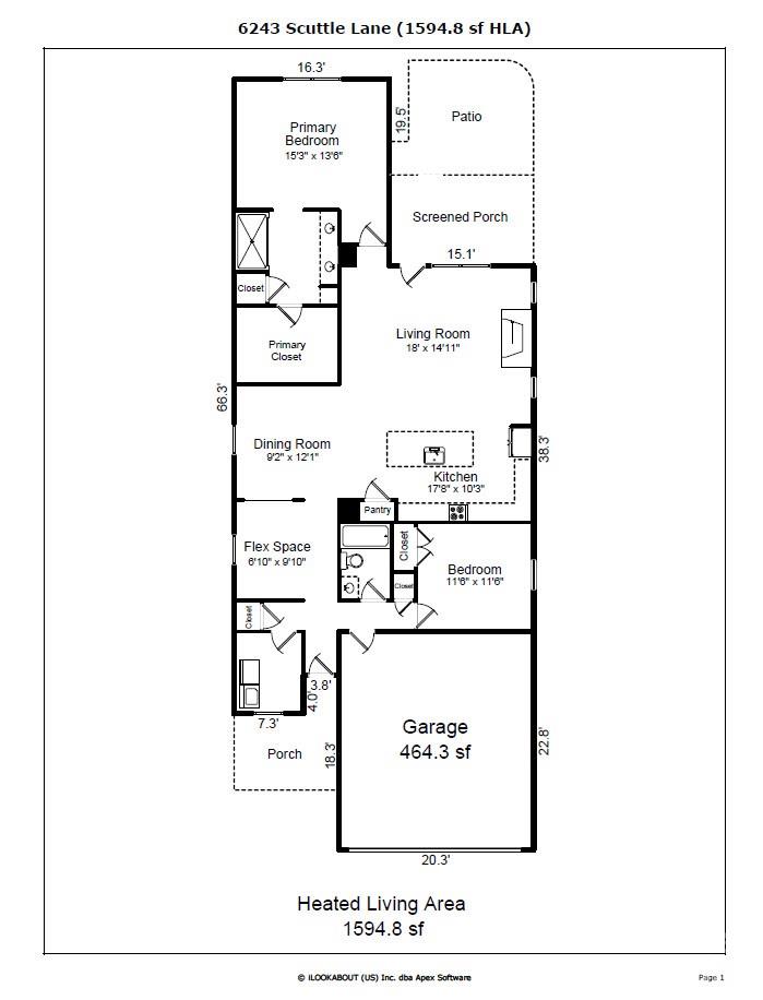
Welcome to Trilogy Lake Norman, a resort-style, golf cart friendly, gated community for ages 55 and better. This 2023 beautifully maintained move-in ready home is ready for you to live your best life. The popular single level open-concept Glory floor plan is a well-planned blend of function and space designed for daily living. The heart of the house is a well-appointed chef’s kitchen with a 9-foot island, substantial cabinet space with upper and lower lighting, configurable pantry and stainless-steel appliances that include an upgraded gas range with dual ovens. The kitchen flows seamlessly into the dining room and great room making this home for ideal entertaining. A spacious primary suite overlooks the backyard and leads into a master bath with dual vanities, toilet closet and a walk-in shower with bench seating. Thoughtful upgrades inside and out include a gas fireplace with logs, designer lighting & fans, recessed lighting, extended finished garage with epoxy flooring, screened porch with extended paver patio and seating wall, customizable shelving, security system and custom window shades. Smart home features are throughout the home and can be managed through simple app connections to your phone. Features include programmable interior and exterior lighting, programmable thermostat, a front door Ring doorbell with camera, back patio Ring camera, app accessible garage door control and front door keyless entry. The beautifully landscaped lot borders a common area giving an extended feel to the backyard. The HOA creates ease of living with fees including front and side yard maintenance. Trilogy Lake Norman’s social membership offers an active lifestyle of indoor & outdoor pools, fitness center & classes, walking trails, pickleball, tennis, community events and an on-site restaurant. In addition to the amazing resort amenities, members have access to Lake Norman through the Freedom Boat Club giving you all the pleasures of boating without the stress of ownership. Schedule your showing and be one step closer to living the lifestyle you've always dreamed of.

Request More Info:

Basic Information
MLS#: 4362017
Price: $498,500
Square Footage: 1,595
Bedrooms: 2
Bathrooms: 2 Full
Acreage: 0.11
Year Built: 2023
Elementary School: Catawba Springs
Middle School: East Lincoln
High School: East Lincoln
Details
Waterfront/water view: No
Parking: Attached Garage,Garage Door Opener
HVAC: Forced Air,Natural Gas
HOA: $540 / Monthly
Main level:   Laundry
Listing Courtesy Of: Carolina Realty Solutions - robin.hurd@crsmail.com

Terms of use/DMCA