6404 Trotters Ridge Road
Charlotte, NC 28227
$410,000 Active
Subdivision: Applegate

This home offers a sophisticated blend of comfort and style in the desirable Applegate community of Charlotte. Thoughtfully designed and beautifully maintained from the moment you step inside, you’re welcomed by rich hardwood floors that sweep through the main level, setting a warm yet refined tone. The living room is anchored by a beautiful fireplace, offering a serene space for quiet evenings. The kitchen is both stylish and functional with generous cabinetry, granite countertops and right next to the patio door for easy outdoor grilling access. Upstairs, the primary suite offers a wonderful large bathroom complete with a double vanity and a soaking tub ideal for unwinding. The additional bedrooms provide versatility and comfort, whether used for guests, family, or a dedicated home office. Outside, the backyard offers privacy and a spot for entertaining

Request More Info:

Basic Information
MLS#: 4365007
Price: $410,000
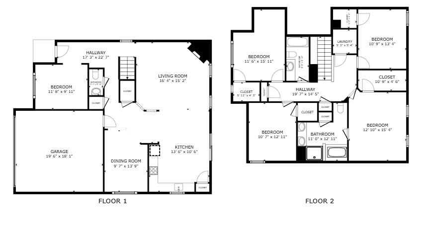
Square Footage: 2,350
Bedrooms: 4
Bathrooms: 2 Full, 1 Half
Acreage: 0.22
Year Built: 2006
Elementary School: J.H. Gunn
Middle School: Albemarle
High School: Independence
Details
Waterfront/water view: No
Parking: Attached Garage,Garage Door Opener,Garage Faces Front
HVAC: Central
Main level:   Family Room
Upper level:   Primary Bedroom
Virtual Tour: Click here
Listing Courtesy Of: C-A-RE Realty - DonAnthonyRealty@gmail.com

Terms of use/DMCA