6435 Morven Lane
Charlotte, NC 28270
$1,095,000 Under Contract - No Show
Subdivision: Lansdowne

Located in the heart of the highly sought-after Lansdowne community, this beautifully updated residence blends timeless architecture with elevated, modern design. Thoughtfully reimagined for today’s lifestyle, the home offers gracious living spaces, extensive system upgrades, and refined finishes throughout. At the center of the home, the expansive chef’s kitchen has been expertly opened to the main living area, creating a light-filled setting ideal for both relaxed daily living and sophisticated entertaining. Custom cabinetry is complemented by sleek quartz countertops and designer floating shelves that add both style and functionality. Thermador appliances — including a gas range, refrigerator, and freezer — elevates the space, delivering exceptional performance with a polished, luxury aesthetic. Extensive mechanical improvements provide exceptional peace of mind, including a newer roof (2023), updated HVAC system (2024), improved plumbing with a new main line and sewer clean-out, a whole-home generator, and gutter guards. Interior and exterior enhancements continue throughout with beautifully refinished hardwood floors, fresh interior and exterior paint, and renovated primary and secondary bathrooms that reflect a clean, modern style. The professionally enhanced DryPro basement features carbon fiber reinforced structural supports and has been expanded to include a full bath and secondary kitchen, offering remarkable flexibility for guests, extended living, or recreation. Additional highlights include a private driveway gate, new gas logs in the office, and a number of valuable inclusions such as the garage freezer, additional refrigerator, primary closet organization system, and washer and dryer. With its thoughtful renovations, premium upgrades, and prime location in one of Charlotte’s most established neighborhoods, this exceptional home offers a rare combination of character, comfort, and enduring value.

Request More Info:

Basic Information
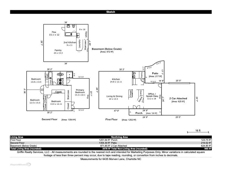
MLS#: 4355200
Price: $1,095,000
Square Footage: 3,578
Bedrooms: 4
Bathrooms: 3 Full, 1 Half
Acreage: 0.47
Year Built: 1966
Elementary School: Lansdowne
Middle School: McClintock
High School: East Mecklenburg
Details
Waterfront/water view: No
Parking: Driveway,Electric Gate,Attached Garage,Garage Door Opener,Garage Faces Rear
HVAC: Forced Air,Natural Gas
Basement:   2nd Kitchen
Main level:   Living Room
Upper level:   Primary Bedroom
Virtual Tour: Click here
Listing Courtesy Of: COMPASS - christie.hansen@compass.com

Terms of use/DMCA