665 Dogwood Lane Unit B1
Davidson, NC 28036
$2,795,791 Active
Subdivision: Davidson

ONE LOT REMAINING! Build a custom home in the heart of Davidson. Located in a premier walkable location, this homesite offers easy access to historic downtown, Davidson College, and the vibrant shops and restaurants along Main Street. This proposed home is to be built by one of Charlotte’s premier custom builders, known for exceptional craftsmanship, thoughtful design, and luxury finishes throughout. The inviting layout features an open floor plan with a first-floor primary suite, a gourmet kitchen with custom cabinetry, an expansive island, and a separate scullery. Large sliding doors seamlessly connect the main living area to a generous covered porch—perfect for outdoor entertaining. Please note: this home is proposed. We offer flexibility in design and customization and are happy to collaborate with your architect to bring your vision to life. For additional details on the LOT, see Lot listing MLS#: 4326882

Request More Info:

Basic Information
MLS#: 4328998
Price: $2,795,791
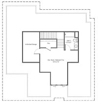
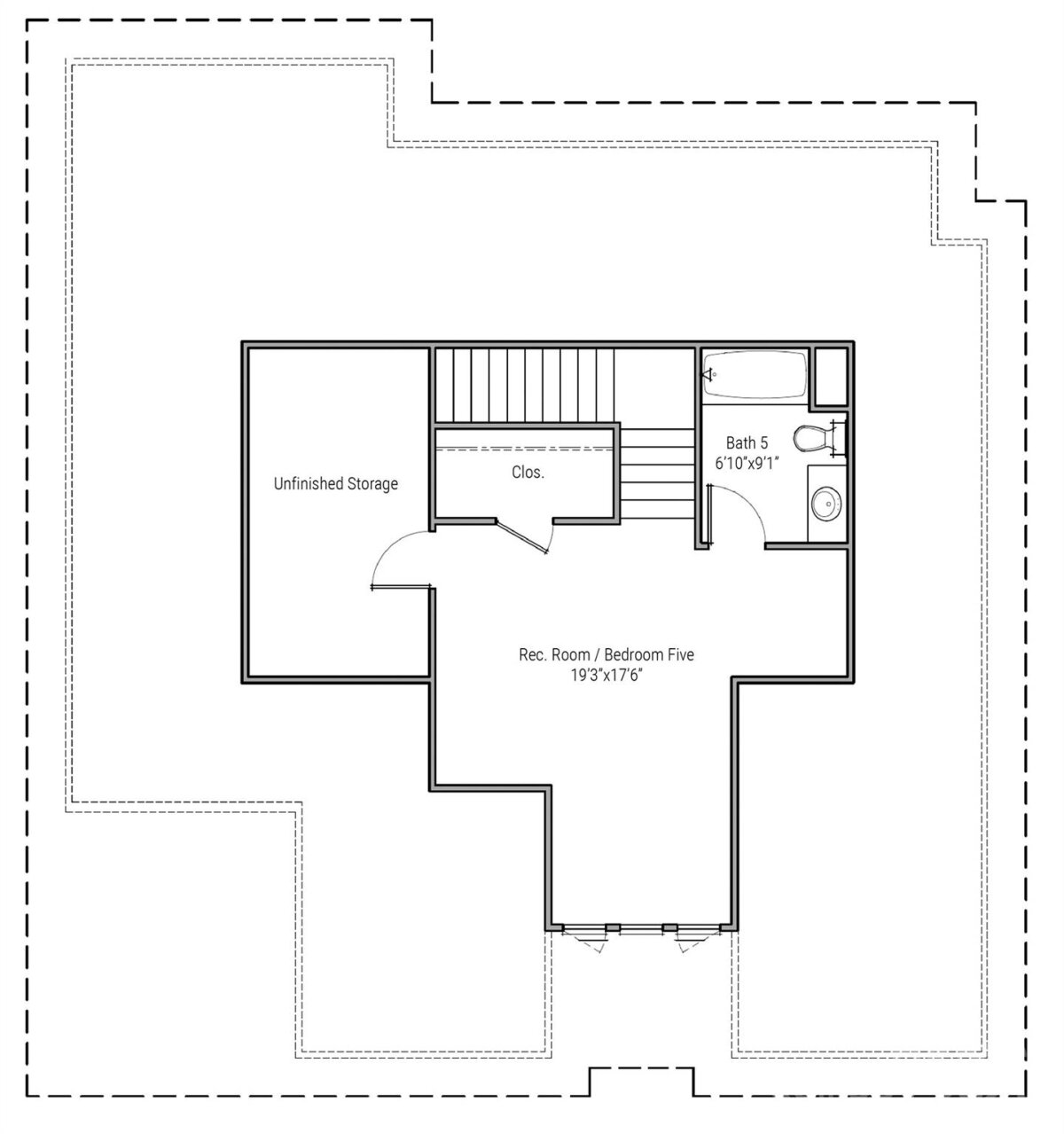
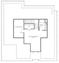
Square Footage: 3,907
Bedrooms: 4
Bathrooms: 4 Full, 1 Half
Acreage: 0.44
Year Built: 2026
Elementary School: Unspecified
Middle School: Unspecified
High School: Unspecified
Details
Waterfront/water view: No
Parking: Driveway,Detached Garage,Garage Door Opener,Keypad Entry
HVAC: Forced Air,Heat Pump,Natural Gas
Main level:   Kitchen
Upper level:   Office
Listing Courtesy Of: Simonini Realty Inc - john@simonini.com

Terms of use/DMCA