7054 Grandview Circle
Newland, NC 28657
$1,399,000 Active
Subdivision: Gingercake Acres

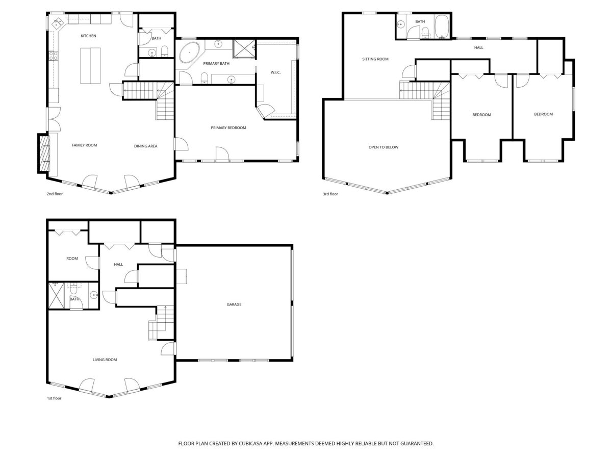
Welcome to a place where mountain living meets true community. Located in the sought after Gingercake Acres, this lovingly maintained one owner custom home offers both a peaceful setting and a vibrant neighborhood lifestyle just minutes from some of the High Country’s most treasured natural areas. Built in 2015 and thoughtfully designed as a full time residence by its original owners, this mountain style home has been meticulously and lovingly maintained, with a clear pride of ownership evident throughout. Quality craftsmanship and attention to detail can be seen in every corner. The main level living is both comfortable and inviting, featuring a spacious kitchen with an island and custom cabinetry that opens seamlessly to the vaulted living and dining area. Large windows frame long range views stretching toward the Brown Mountain Overlook, creating a stunning backdrop in every season. The spacious primary suite is also located on the main level and features a thoughtful layout, a large walk in closet, and a beautifully designed and decorated bathroom. Upstairs provides plenty of room for guests with two generously sized bedrooms, a full bath, and a loft currently used as an office, offering flexibility for work or relaxation. The fully finished lower level adds even more living space with a second family room and an additional room that can be a home office, exercise space, craft room and more. Built with a Superior Walls precast concrete foundation, the home combines beauty with lasting structural integrity. The attached two car garage is located on the lower level, and an elevator provides convenient access to all three floors, connecting the garage to the kitchen and continuing to the upper level loft. A whole house generator provides added peace of mind year round. Outside, the property continues to impress. Situated on a .91 acre double lot, the grounds feature extensive stone masonry walls, natural boulders, and thoughtfully designed landscaping that reflects the same level of care and attention as the home itself and will soon be in full bloom. A large detached wired shop offers excellent space for hobbies, storage, or projects. Gingercake Acres is known for its welcoming, community atmosphere. Neighbors gather regularly for weekly potluck meals, highlighted by a beloved Memorial Day kickoff that opens the community pool and celebrates the start of the season. Residents also enjoy a rustic lodge style clubhouse, a lower level game room, and combination tennis and pickleball courts, with a playground currently being refreshed. One of the most unique features of this community is its direct access to the Linville Gorge, often called the Grand Canyon of the East. Just half a mile walk or drive from the home, the Jonas Ridge Trail offers a scenic hike to the top of Gingercake Mountain at 4120 feet and connects toward Sitting Bear Mountain. This is truly a hiker’s paradise with breathtaking long range views in every direction. Experience the charm of a close knit mountain community, the beauty of the surrounding landscape, and the comfort of a one owner home that has been exceptionally well cared for from day one.

Request More Info:

Basic Information
MLS#: 4369276
Price: $1,399,000
Square Footage: 3,346
Bedrooms: 3
Bathrooms: 3 Full, 1 Half
Acreage: 0.91
Year Built: 2015
Elementary School: Crossnore
Middle School: Avery County
High School: Avery County
Details
Waterfront/water view: No
Parking: Basement,Driveway,Attached Garage,Garage Door Opener
HVAC: Central,Propane
Exterior Features: Elevator
HOA: $150 / Annually
Basement:   Den
Main level:   Kitchen
Upper level:   Bedroom(s)
Virtual Tour: Click here
Listing Courtesy Of: C-21 Mountain Vistas - raymedlin.c21@gmail.com

Terms of use/DMCA