718 W Trade Street Unit 803
$414,900 Active
Complex: Gateway Plaza

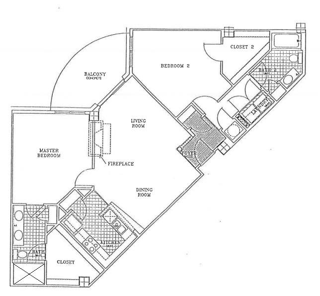
Welcome to Gateway Plaza and an exceptional top-floor residence offering the perfect blend of privacy, modern updates, and vibrant Uptown Charlotte living. This beautifully maintained 2-bedroom, 2 full bath condo features a thoughtfully designed layout with spacious bedrooms, large walk-in closets, and an in-unit laundry room for everyday convenience. The fully remodeled primary suite bath adds a touch of luxury, while updated finishes create a warm and inviting atmosphere throughout the home. Stylish fixtures throughout create a move-in-ready experience. The kitchen is designed to impress with granite countertops, custom tile backsplash, stainless steel appliances including a gas range, and a functional layout that opens seamlessly into the living and dining areas, ideal for entertaining or relaxing at home. Step outside to your private patio overlooking the community pool, complete with your own gas grill, an uncommon and highly desirable feature that creates a true indoor-outdoor living experience. As the new owner, you'll enjoy secure building access and a gated parking deck with two exclusive parking spaces, a rare find in Uptown, along with other resort-style amenities including a pool, rooftop terrace with skyline views, clubhouse, fire pit, and community gathering spaces. Located just steps from Uptown’s best dining, nightlife, parks, and entertainment, along with easy access to I-77, I-85, and the light rail, this home delivers unmatched convenience and connectivity. Whether you’re an urban professional, investor, or someone seeking a stylish city retreat, this residence stands out with its top-floor location, unique outdoor features, and turnkey condition. Don’t miss this opportunity to own one of Gateway Plaza’s most distinctive and desirable residences.

Request More Info:

Basic Information
MLS#: 4361543
Price: $414,900
Square Footage: 1,159
Bedrooms: 2
Bathrooms: 2 Full
Year Built: 2000
Elementary School: Bruns Avenue
Middle School: Sedgefield
High School: Myers Park
Details
Waterfront/water view: No
Parking: Assigned,Parking Deck,Parking Space(s)
HVAC: Electric,Heat Pump
HOA: $405 / Monthly
Main level:   Living Room
Listing Courtesy Of: SHS Realty - jviscount@gmail.com

Terms of use/DMCA