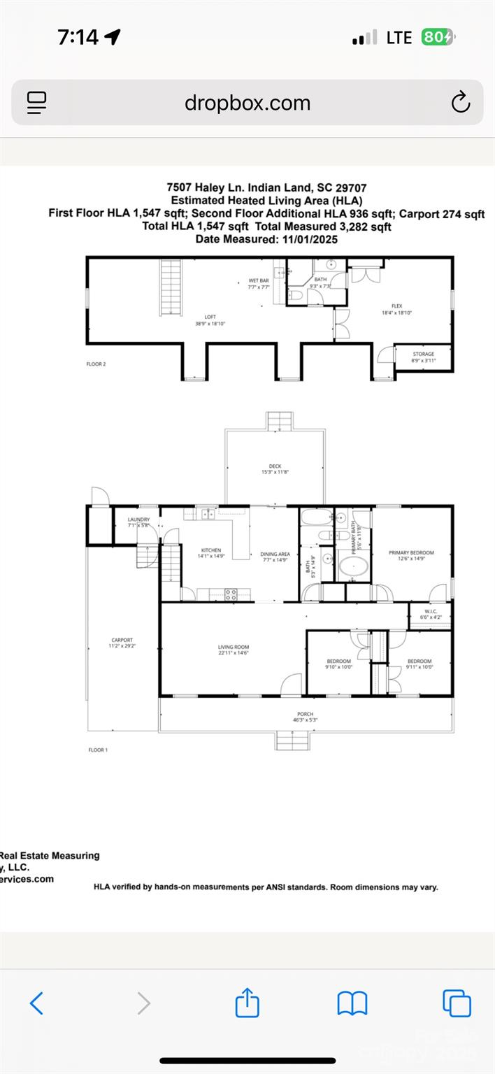
7507 Haley Lane Unit 1
Indian Land, SC 29707
$484,900 Active
Subdivision: Travis Estates

Welcome to this four bedroom, three bath Indian Land home located on a one acre lot with no HOA. You'll find abundant natural light and an easy flow between the living area and the eat in kitchen, perfect for everyday living. The finished area upstairs provides flexible space ideal for a home office, play room or guest retreat. (Please note: this upstairs addition does not have permits) Step outside to enjoy your fully fenced flat back yard ideal for pets, play or gardening. With no HOA you'll have the freedom to truly make this property your own. Conveniently located near shopping, dining and Indian Land schools. Don't miss your chance to own this charming property, schedule your showing soon!

Request More Info:

Basic Information
MLS#: 4317281
Price: $484,900
Square Footage: 2,483
Bedrooms: 4
Bathrooms: 3 Full
Acreage: 1.1
Year Built: 1995
Elementary School: Unspecified
Middle School: Indian Land
High School: Indian Land
Details
Waterfront/water view: No
Parking: Attached Carport
HVAC: Central
Main level:   Laundry
Listing Courtesy Of: Southern Nest Realty Inc - heatherbreedlove3@gmail.com

Terms of use/DMCA