801 Sonata Place
Charlotte, NC 28211
$599,900 Active
Subdivision: Stonehaven

Welcome to easy living in one of Charlotte’s most desirable and established neighborhoods—Stonehaven. Situated on a spacious 0.3-acre lot, this beautifully maintained 3 bed/2.5 bath home blends classic charm with thoughtful modern updates, offering comfort, functionality, and peace of mind. Inside, you’ll find bright, inviting living spaces filled with natural light, including a warm and welcoming living room centered around a cozy wood burning fireplace. The updated kitchen features white cabinetry, granite countertops, stainless steel appliances, and a functional island—perfect for everyday living and entertaining. Stylish bathrooms and well-designed spaces throughout the home provide both character and convenience. Step outside to enjoy a generous backyard shaded by mature trees, offering plenty of room to relax, play, garden, or entertain. The property also includes versatile outbuildings ideal for storage, hobbies, or workspace, and the concrete slab is a great foundation for a future shed or fire pit area! Last year the home underwent some major improvements that will make the home nearly maintenance free for years to come, including new siding, new roof, and a new zoned HVAC system w/ new ductwork throughout. Located in the highly sought-after Stonehaven community, this home offers convenient access to shopping, dining, parks, and all that Charlotte has to offer, while maintaining the charm and maturity of an established neighborhood.

Request More Info:

Basic Information
MLS#: 4369314
Price: $599,900
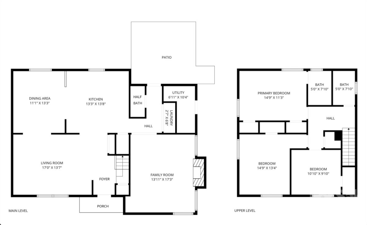
Square Footage: 1,900
Bedrooms: 3
Bathrooms: 2 Full, 1 Half
Acreage: 0.3
Year Built: 1976
Elementary School: Unspecified
Middle School: Unspecified
High School: Unspecified
Details
Waterfront/water view: No
Parking: Driveway
HVAC: Heat Pump,Zoned
Main level:   Laundry
Upper level:   Bedroom(s)
Virtual Tour: Click here
Listing Courtesy Of: Trade & Tryon Realty - scott@tradetryonrealty.com

Terms of use/DMCA