8592 Amanda Lane
Norwood, NC 28128
$350,000 Active

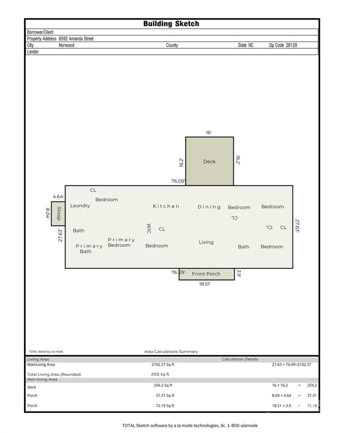
Modern comfort meets expansive living in this meticulously updated gem! Discover the perfect blend of style and space in this stunning 2,102 sq. ft. home, situated on a sprawling 0.98-acre lot.The interior features fresh new paint throughout and stylish, durable luxury vinyl plank (LVP) flooring in all main living areas. In the heart of the home, the kitchen shines with sleek granite countertops as well as the bathrooms.This functional floor plan includes 3 bedrooms and 2 bathrooms, plus three additional bonus rooms that offer incredible flexibility for a home office, playroom, or guest quarters.Relax or entertain on the large oversized deck overlooking your private, serene backyard! Schedule your showing today!

Request More Info:

Basic Information
MLS#: 4368057
Price: $350,000
Square Footage: 2,102
Bedrooms: 3
Bathrooms: 2 Full
Acreage: 0.98
Year Built: 1998
Elementary School: Unspecified
Middle School: Unspecified
High School: Unspecified
Details
Waterfront/water view: No
Parking: Driveway
HVAC: Central
Main level:   Office
Listing Courtesy Of: NorthGroup Real Estate LLC - sandraoncrealtor@gmail.com

Terms of use/DMCA